759 900 $

Commercial À vendre à Chase River-Duke Point-South End, Nanaimo, Colombie-Britannique

759 900 $

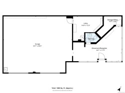
Commercial opportunity in downtown location with DT12 zoning, dual road frontages, and unbeatable exposure to over 45,000 vehicles per day. Situated on a fully fenced 10,586 sq ft lot with ample on-site parking, the property features a prominent backlit pylon sign and new overhead lighting to maximize visibility. The 1,600 sq ft building is equipped with two drive-in bays, a bright showroom/reception area, private office, washroom, 200-amp electrical service, 4-point hoist, swivel boom, and compressor. Heating is provided by a gas furnace for both the showroom and shop, along with electric heat for added efficiency. This well-equipped site offers excellent potential for a service-based businesses, with future development opportunities thanks to its flexible zoning and strategic proximity to downtown amenities, ferry terminals, Helijet, seaplane terminal, and shopping. A rare and versatile investment in the heart of the city. Measurements are approx.

Caractéristiques :

  • Taxes annuelles totales: 10 231 $
  • Bâti en: 1965
  • Caractéristiques de stationnement: Sur place
  • Caractéristiques du bâtiment: Zone à circulation élevée, Stationnement, Système de sécurité, Exposition visuelle
  • Caractéristiques du terrain: Emplacement central, Coin de rue, Terrain plat, Avec services, Trottoir
  • Caractéristiques extérieures: Panneau : pylône
  • Dimensions du terrain : 10454.40 Pieds carrés
  • Égouts:
  • Largeur du terrain en façade : 10454.4 Pieds carrés
  • Propriété: Propriété franche
  • Source d'eau: Municipal
  • Sous-type de propriété: Utilisation mixte
  • Superficie habitable (approx): 1600 Pieds carrés
  • Type de surface de route: Pavée
  • Zonage: DT-12

Gracieuseté de : REMAX Professionals (NA)

Données fournies par : Vancouver Island Real Estate Board et Victoria Real Estate Board. Nous croyons que tous les renseignements affichés sont exacts, mais nous ne le garantissons pas; les renseignements devraient être vérifiés de façon indépendante.