Maison À vendre à Merritt, Colombie-Britannique
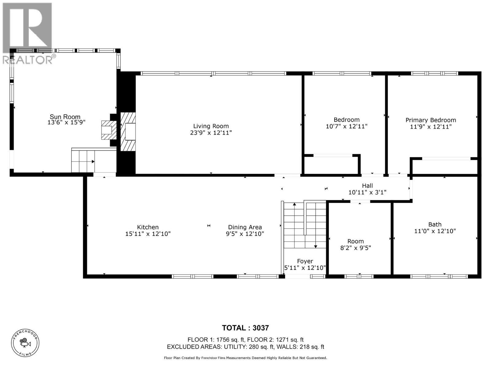
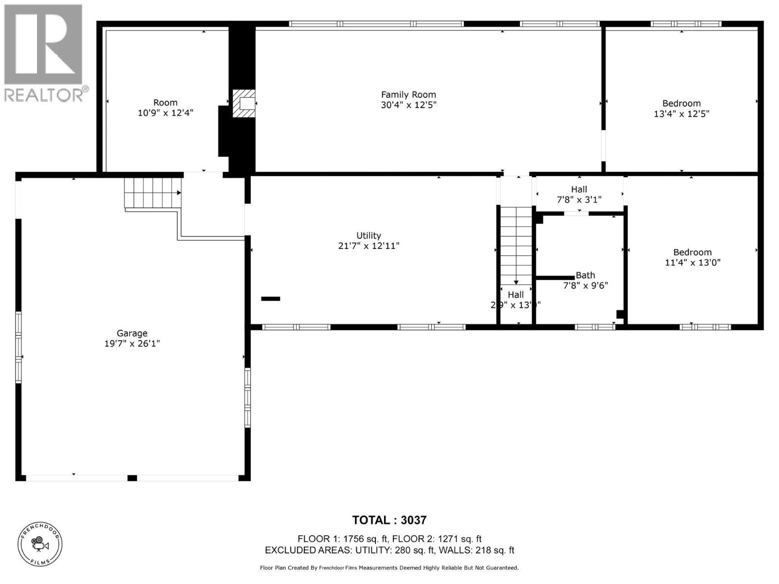
650 000 $ ÉvaluationExpressMC:5 Chambres
2 Salles de bain
-
Détails
-
Carte
-
Données démographiques
-
Vue de la rue
-
Itinéraire
-
Publicité











































