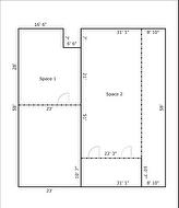
195 Howard Street, Kimberley, BC, V1A 2G5
13.00 $ /pi. ca.No. MLS® 10370686
Photos supplémentaires
195 Howard Street, Kimberley, BC, V1A 2G5
13.00 $ /pi. ca.No. MLS® 10370686
Photos supplémentaires


