Propriété À vendre à City Centre, Kelowna, Colombie-Britannique
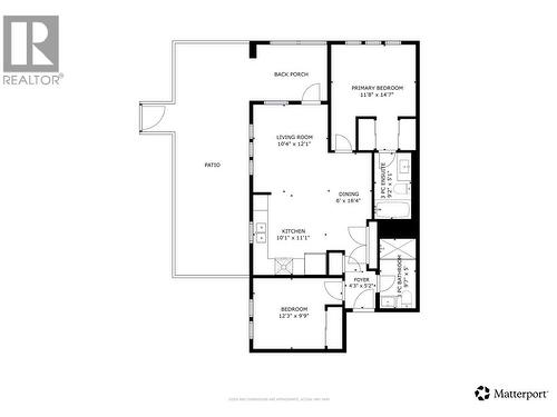
540 000 $ ÉvaluationExpressMC: Non disponible2 Chambres
2 Salles de bain
-
Détails
-
Carte
-
Données démographiques
-
Vue de la rue
-
Itinéraire
-
Publicité






















