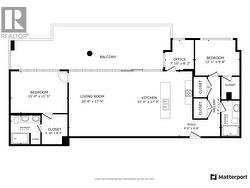
1181 Sunset Drive Unit# 2602, Kelowna, British Columbia, V1Y 0L4
1 700 000 $No. MLS® 10367280
Le contenu de cette inscription est fourni par REALTOR.ca et a été autorisé par les membres de l'Association canadienne de l'immeuble.
Photos supplémentaires





























































