Maison À vendre à Grand Forks, Colombie-Britannique
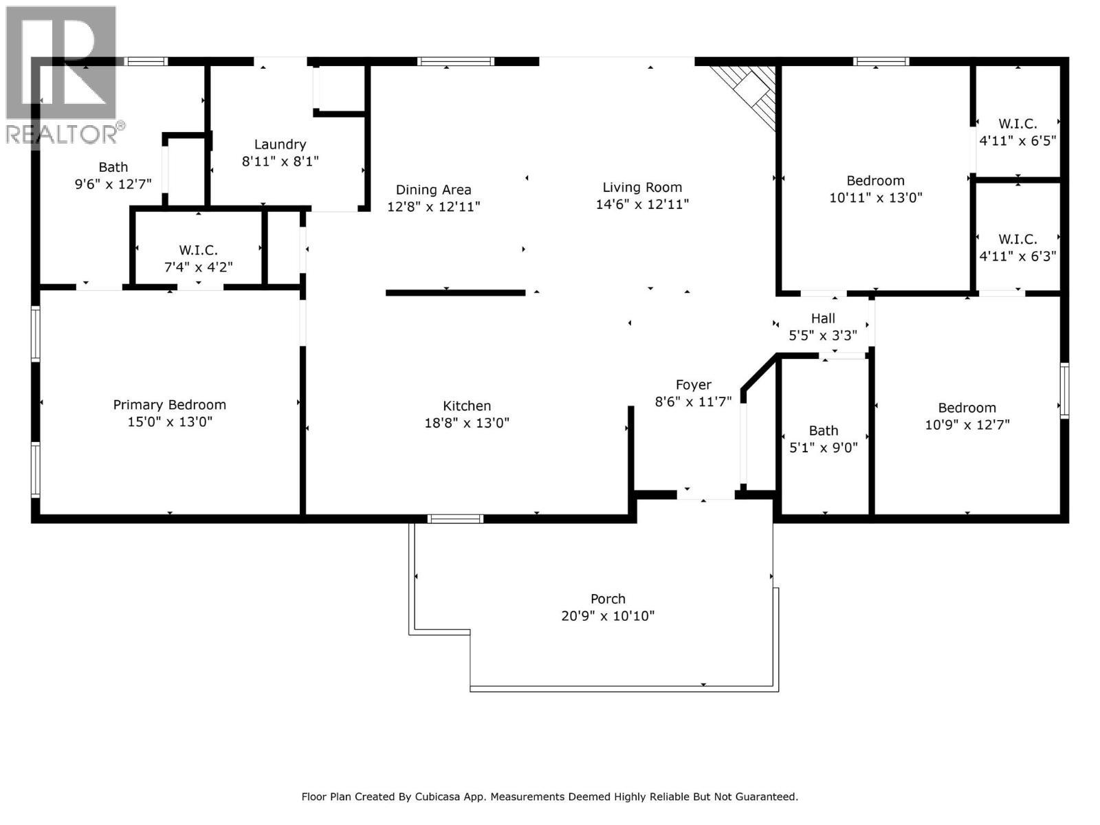
399 900 $ ÉvaluationExpressMC: Non disponible3 Chambres
2 Salles de bain
-
Détails
-
Carte
-
Données démographiques
-
Vue de la rue
-
Itinéraire
-
Publicité




































