Personal Real Estate Corporation
Royal LePage Little Oak Realty
*
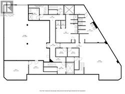
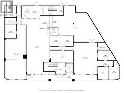
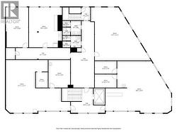
1815 Central Avenue, Grand Forks, British Columbia, V0H 1H2
1 399 000 $No. MLS® 10366936
Photos supplémentaires















