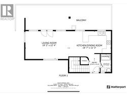
3935 Eagle Bay Rd. Road Unit# 1, Eagle Bay, British Columbia, V0E 1T0
471 500 $No. MLS® 10364349
Le contenu de cette inscription est fourni par REALTOR.ca et a été autorisé par les membres de l'Association canadienne de l'immeuble.
Photos supplémentaires


































































