D-SL4-875 Grumman Pl, Comox, BC, V9M 4H9
759 900 $No. MLS® 1010677
Maison À vendre à Comox, Colombie-Britannique
3
Chambres
3
Salles de bain
-
8
Espaces de stationnement
Now Selling Phase 1 of Aspen Villas. Now under construction, these stunning 3 bedroom, 2.5 bath townhomes offer your choice of light or dark designer interior schemes, complete with quartz countertops, an electric fireplace, and an efficient heat pump system for year-round comfort. A 5-piece appliance package is included with window coverings, blending style with functionality. Whether you're looking for your first home or your forever home, Aspen Villas delivers upscale living in a boutique community setting. Expected completion December 2025. Visit www.aspenvillas.ca for floorplans and full feature details.
Caractéristiques :
- Taxes annuelles totales: 0 $
- Animaux domestiques permis: Aquariums, Oiseaux, Mammifères en cage, Chats permis, Chiens permis, Nombre limite, Taille limite
- Appareils ménagers: Lave-vaisselle, Laveuse et sécheuse autoportantes
- Autre équipement: Ouvre-porte de garage électrique
- Bâti en: 2025
- Caractéristiques de buanderie: À l'intérieur des unités
- Caractéristiques de stationnement: Allée, Garage
- Caractéristiques des fenêtres: Fenêtres isolées, Cadres de vinyle, Rideaux
- Caractéristiques du foyer: Électrique
- Caractéristiques du terrain: Accès facile, Quartier familial, Arroseur(s), Aménagement paysager, Terrain plat, Marina voisine, Terrain de golf à proximité, Zone tranquille
- Caractéristiques extérieures: Balcon/patio, Jardin faible d'entretien, Système de gicleurs
- Chambres : 3
- Chauffage: Électrique, Thermopompe, Gaz naturel
- Commodités du syndicat: Éclairage des rues
- Condition de la propriété: En construction
- Description du zonage: Multifamilial
- Détails de la fondation: Périmètre en béton
- Égouts:
- Inclut dans les frais du syndicat: Assurance, Terrains d'entretien, Structure d'entretien, Égouts, Eau
- Largeur du terrain en façade : 0 Pieds carrés
- Matériaux de construction: Charpente en bois, Insolation : plafond, Insolation : murs, Autre
- Propriété: Condo/strata en propriété franche
- Refroidissement: Climatisation
- Revêtements de sol: Mixte
- Salle(s) de bains : 3
- Services publics: Câble branché, Électricité branchée, Gaz naturel branché, Téléphone branché
- Source d'eau: Municipal
- Sous-sol: Vide sanitaire
- Sous-type de propriété:
- Superficie habitable (approx): 1381 Pieds carrés
- Toiture: Bardeaux de fibre de verre
- Type de surface de route: Pavée
- Zonage: CD-30
- Nbre d'espaces de stationnement: 8
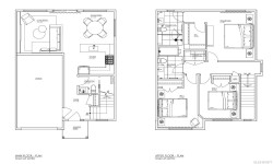
Détails des pièces :
- Salle de bains Rez-de-chaussé
- Cuisine Rez-de-chaussé 2.90 m x 2.74 m 9'6 p x 9'0 p
- Salle de bains 2e niveau
- Salle de bain ensuite 2e niveau
- Salle à dîner Rez-de-chaussé 4.11 m x 3.00 m 13'6 p x 9'10 p
- Salon Rez-de-chaussé 3.96 m x 3.61 m 13'0 p x 11'10 p
- Salle de lavage 2e niveau 1.78 m x 1.02 m 5'10 p x 3'4 p
- Autre 2e niveau 4.42 m x 3.71 m 14'6 p x 12'2 p
- Chambre 2e niveau 3.56 m x 3.10 m 11'8 p x 10'2 p
- Chambre 2e niveau 3.15 m x 3.20 m 10'4 p x 10'6 p
Gracieuseté de : Royal LePage In The Comox Valley
Données fournies par : Vancouver Island Real Estate Board et Victoria Real Estate Board. Nous croyons que tous les renseignements affichés sont exacts, mais nous ne le garantissons pas; les renseignements devraient être vérifiés de façon indépendante.
Photos supplémentaires








