483 990 $

Maison À vendre à Airdrie, Alberta

483 990 $
  • 3

    Chambres

  • 3

    Salles de bain

  • 1728.00 Pieds carrés

    Dimension du terrain

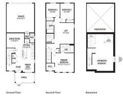
The Ripley End’s large front porch is a welcoming refuge to greet friends and connect with the neighborhood. This open concept living space creates the ultimate entertaining and family environment. A stunning kitchen with a quartz island breakfast bar invites everyone to pull up a chair, and a large living room offers extra space to hang out and relax. Upstairs, you'll find a conveniently located laundry room, a linen closet, a full bath, and a bright, spacious loft. Relax in the large primary bedroom, featuring a double hanging walk-in closet and an ensuite. Enjoy the convenience of a double attached garage, the energy savings of 8 solar panels and the freedom of no condo fees. More parking, more savings, and more privacy -without the extra monthly costs.

Particularités du bâtiment :

  • Stationnement: Oui
  • Superficie totale aménagée: 1503.25

Caractéristiques :

  • Bâti en: 2026
  • Caractéristiques du stationnement: Garage double attenant
  • Caractéristiques extérieures: Aucun
  • Caractéristiques intérieures: Plomberie brute de salle de bains en place, Îlot de cuisine, Maison sans animaux, Maison sans fumée, Placard(s) praticable(s)
  • Chambres : 3+0
  • Chauffage: Air pulsé, Gaz naturel
  • Détails de la fondation: Béton coulé
  • Dimensions du terrain : 1728.00 Pieds carrés
  • Matériaux de construction: Charpente en bois
  • Niveaux: Deux
  • Refroidissement: Aucun
  • Revêtements de sol: Moquette
  • Salle(s) de bains : 2+1
  • Style architectural: 2 étages
  • Superficie habitable (approx): 1503.25 Pieds carrés
  • Toiture: Bardeaux d'asphalte
  • Zonage: TBD
  • Nbre d'espaces de stationnement: 2

Gracieuseté de : Bode Platform Inc.

Données fournies par : Central Alberta REALTORS® Association 4922 45 St., Red Deer, Alberta T4N 1K6
Nous croyons que tous les renseignements affichés sont exacts, mais nous ne le garantissons pas; les renseignements devraient être vérifiés de façon indépendante. Aucune garantie ou représentation de quelque nature que ce soit n’est offerte. Droits © 2021 Tous les droits sont réservés.