Investment For Sale In Saint-Sulpice, Quebec
$799,900-
Details
-
Map
-
Demographics
-
Street View
-
Get Directions
-
Advertising
Remarks:
Emplacement de rêve au bord du majestueux fleuve Saint-Laurent à Saint-Sulpice ! Cet immeuble semi-commercial unique propose 3 locaux commerciaux générant des revenus stables et un spectaculaire logement de 4 chambres et 2 salles de bains occupant tout le 2 étage. Profitez d'une immense terrasse avec vue panoramique à couper le souffle et d'un garage surdimensionné de 11 pi de hauteur. Parfait pour un propriétaire occupant désirant allier qualité de vie et revenus, ou pour un investisseur à la recherche d'un actif rare et rentable. Une opportunité exceptionnelle dans un secteur recherché !
Vivez au bord du fleuve... tout en faisant travailler votre investissement!
Au coeur de Saint-Sulpice, à deux pas de la marina, découvrez cet immeuble unique comprenant 3 locaux commerciaux générateurs de revenus et un vaste logement de propriétaire occupant avec 4 chambres, 2 salles de bain** et un balcon panoramique offrant une vue à couper le souffle sur le fleuve Saint-Laurent.
Profitez d'un grand garage fonctionnel, d'un accès direct à l'autoroute 40 et de la proximité des services, restaurants, marchés locaux, pistes cyclables et parcs régionaux. Ici, vous combinez qualité de vie, emplacement de rêve et rentabilité.
Une opportunité rare sur le marché -- ne la laissez pas filer!
Inclusions: Logement du 1060: Réfrigérateur, lave-vaisselle, micro-onde, plaque-chauffante et four, fixtures, toiles, stores.
Exclusions : 1060: Support tv mural exclus,cellier. Effets personnels des locataires dont thermopompe de la crèmerie et air climatisée du centre de toilettage.
Building Features:
- Building amenity and common areas: Bicycle storage area, Visitor parking
- Distinctive Features: No rear neighbours
- Driveway: Asphalt, Unpaved
- Foundation: Concrete slab on ground
- Garage: Heated, Double width or more, Built-in
- Parking: Garage
- Property or unit amenity: Signs allowed
- Proximity: Highway, CEGEP, Elementary school, High school
- Roofing: Sheet metal
- Size: 42.0 x 70.0 Feet
- Topography: Flat
- View: View of the water
- Water (access): Access, Navigable
- Heating System: Electric baseboard units
- Heating Energy: Electricity
- Water Supply: Municipality
- Sewage System: Municipality
Potential Gross Revenue:
- Residential: $26,400
- Commercial: $41,520
Taxes:
- Municipal Tax: $5,778
- School Tax: $398
- Annual Tax Amount: $6,176
Property Assessemnt:
- Lot Assessment: $248,100
- Building Assessment: $391,100
- Total Assessment: $639,200
Property Features:
- Bedrooms: 4
- Bathrooms: 2
- Built in: 1938
- Irregular: Yes
- Lot Depth: 87.0 Feet
- Lot Frontage: 130.0 Feet
- Lot Size: 7419.56 Square Feet
- Zoning: COMM, RESI
- No. of Parking Spaces: 2
Revenue Units:
Unit 1
- Pieces 9
- Bedrooms 4
- Baths 2
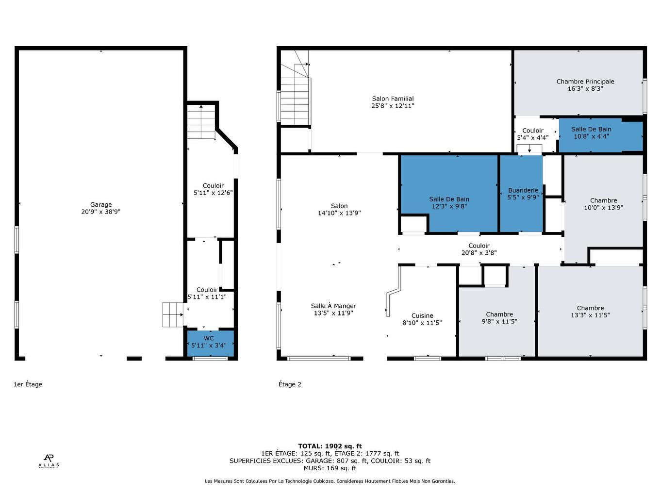
Rooms:
- Living 2nd Level 3.76 m x 7.77 m 12.4 ft x 25.6 ft Flooring: Laminate floor
- Living 2nd Level 3.12 m x 4.47 m 10.3 ft x 14.8 ft Flooring: Other
- Dining 2nd Level 4.27 m x 4.47 m 14 ft x 14.8 ft Flooring: Other
- Kitchen 2nd Level 2.59 m x 3.51 m 8.6 ft x 11.6 ft Flooring: Other
- Bathroom - Irregular 2nd Level 3.00 m x 3.66 m 9.10 ft x 12 ft Flooring: Ceramic
- Bedroom 2nd Level 2.82 m x 2.87 m 9.3 ft x 9.5 ft Flooring: Other
- Bedroom 2nd Level 3.51 m x 4.11 m 11.6 ft x 13.6 ft Flooring: Other
- Bedroom 2nd Level 3.10 m x 3.45 m 10.2 ft x 11.4 ft Flooring: Other
- Laundry 2nd Level 1.73 m x 2.97 m 5.8 ft x 9.9 ft Flooring: Ceramic
- Bathroom 2nd Level 1.27 m x 3.30 m 4.2 ft x 10.10 ft Flooring: Ceramic
- Bedroom 2nd Level 2.62 m x 5.05 m 8.7 ft x 16.7 ft Flooring: Other
Unit 2
Rooms:
Unit 3
Rooms:
Unit 4
Rooms:
Convert Measurement to:
Data provided by: Centris - 600 Ch Du Golf, Ile -Des -Soeurs, Quebec H3E 1A8
All information displayed is believed to be accurate but is not guaranteed and should be independently verified. No warranties or representations are made of any kind. Copyright© 2021 All Rights Reserved.













































