43 Glover Shore Road, Summerside, PE, C1N 4G4
$445,000MLS® # 202529257
House For Sale In Summerside, Prince Edward Island
3
Bedrooms
2
Baths
-
0.11
Lot Size
Property Information:
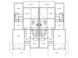
Modern style duplex located on a dead-end street just steps from the waterfront and close to all Summerside amenities. This property offers many features not commonly found in other duplex developments and includes modern finishes throughout. Each unit offers 1,450 square feet of finished living space with a 1.5 car garage, 3 bedrooms, and 2 full bathrooms. The primary bedroom includes a walk-in closet and an ensuite with a custom tiled shower. The large entryway features built-in lockers and tile flooring. Tile flooring is also featured in all bathrooms, with water-resistant laminate flooring throughout the remainder of the home. The main living area offers vaulted ceilings with wood beams, large patio doors with access to the back deck, an electric fireplace media wall, and an open concept kitchen, living, and dining layout. The kitchen will include a 7-foot wood-tone island to match the ceiling beams, pewter-colored cabinetry, black hardware, tile backsplash, and all new appliances. Front and rear pressure-treated decks are included. Construction features include an ICF foundation, roof shingles, vinyl siding, 200 amp electrical service, all electric heat plus one heat pump per unit, and a double-wide paved driveway. Exterior colors will be Sand and Linen with black windows and doors, and the garage door will feature windows. Each unit is situated on approximately 0.11 acres. Estimated completion is March 2026.
Property Features:
- Bedrooms: 3
- Bathrooms: 2
- Annual Tax Amount:
- Appliances Included: Range, Stove, Dishwasher, Dryer, Washer, Refrigerator
- Basement: None
- Building Style: 1 Level
- Built in: 2025
- Community Features: Golf Course, Park, Playground, Public Transit, Recreation Center, School Bus Service, Shopping
- Documents on File: Aerial Photos, Floor Plan
- Driveway/Parking: Double, Paved
- Exterior Finish: Vinyl
- Features: Air Exchanger, Ensuite Bath, Electric Fireplace
- Floor Space (approx): 1450 Square Feet
- Flooring: Laminate, Tile
- Foundation: Insulated Concrete
- Fuel Type: Electric
- Heating/Cooling Type: Baseboard, Heat Pump -Ductless
- Land Features: Cleared, Level, Year Round Road
- Lot Size: 0.11
- Property Size: Under 0.5 Acres
- Rental Equipment: None
- Roof: Asphalt Shingle
- Sewage Disposal: Municipal
- Structures: Deck
- Title to Land: Freehold
- Utilities: Cable, Electricity
- Water Source: Municipal
- Garage: Attached, 1.5, Heated, Wired
Rooms:
- Primary Bedroom Main Level 14 x 11
- Ensuite Bathroom Main Level 9.6 x 5.6
- Other Main Level 7 x 8
- Bedroom Main Level 10.6 x 11
- Great Room Main Level 29 x 21
- Kitchen Main Level Combined
- Dining Main Level Combined
- Bathroom Main Level 5.6 x 11
- Laundry Main Level 5.6 x 7
- Bedroom Main Level 10 x 11
- Other Main Level Entry 16 x 7
Courtesy of: CENTURY 21 NORTHUMBERLAND REALTY
Data provided by: Nova Scotia Association of REALTORS® 68 Highfield Park Drive, Suite 112, Dartmouth, Nova Scotia B3A 0E4
All information displayed is believed to be accurate but is not guaranteed and should be independently verified. No warranties or representations are made of any kind. Copyright© 2021 All Rights Reserved
Additional Photos














