217 Shady Acres Drive, Brackley Point, PE, C1A 2V8
$569,000MLS® # 202528598
House For Sale In Brackley Point, Prince Edward Island
3
Bedrooms
2
Baths
-
1.10 acres
Lot Size
Property Information:
New build under construction just minutes away from Brackley Beach National Park. This is a turn key build so you won't have to worry about anything other than moving your furniture in. The home features an open concept living room, dining and kitchen with custom made cabinetry. Master bedroom with walk-in closet and en-suite bathroom with custom tiled shower and cabinetry, large double 29' x 26' garage, and both front and back poured concrete decks to enjoy the mornings and evenings on. The home is completely energy efficient with electric heat throughout including ceiling cassette heat pump, blown-in insulation, R24 exterior insulation and Lux Home Warranty. All HST REBATES to go back to the builder. HST included in the purchase price. Annual subdivision road maintenance fee of $500. 3D photos are not exact. All measurements are approximate and should be verified by purchasers.
Property Features:
- Bedrooms: 3
- Bathrooms: 2
- Annual Tax Amount: $0
- Appliances Included: Stove, Dishwasher, Microwave Rng Hd Combo, Refrigerator
- Basement: None
- Building Style: 1 Level
- Community Features: School Bus Service
- Documents on File: Restrictive Covenants
- Driveway/Parking: Gravel
- Exterior Finish: Vinyl
- Features: Air Exchanger, Electric Fireplace
- Floor Space (approx): 1700 Square Feet
- Flooring: Laminate
- Foundation: Slab
- Fuel Type: Electric
- Heating/Cooling Type: Baseboard, Heat Pump -Ductless
- Land Features: Cleared, Year Round Road
- Lot Size: 1.10 acres
- Property Size: 1 to 2.99 Acres
- Rental Equipment: None
- Roof: Asphalt Shingle
- Sewage Disposal: Septic
- Structures: Patio
- Title to Land: Freehold
- Utilities: Electricity, High Speed Internet
- Water Source: Drilled Well
- Garage: Attached, Double, Heated
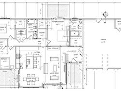
Rooms:
- Kitchen Main Level 14 x 23.4
- Dining Main Level (Combined)
- Living Main Level 13 x 21.4
- Primary Bedroom Main Level 12.10 x 15.8
- Bedroom Main Level 11.6 x 12
- Bedroom Main Level 13.4 x 12
- Ensuite Bathroom Main Level 7.5 x 15.8
- Bathroom Main Level 6 x 11.6
Courtesy of: CENTURY 21 COLONIAL REALTY INC
Data provided by: Nova Scotia Association of REALTORS® 68 Highfield Park Drive, Suite 112, Dartmouth, Nova Scotia B3A 0E4
All information displayed is believed to be accurate but is not guaranteed and should be independently verified. No warranties or representations are made of any kind. Copyright© 2021 All Rights Reserved
Additional Photos






