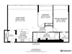
602-2144 PELISSIER, Windsor, ON, N8X 1N4
$239,900MLS® # 25028850
Sales Representative
Royal LePage Binder Real Estate - Amherstburg
, Brokerage*
Additional Photos






































