428 ROY STREET, West Nipissing (Sturgeon Falls), Ontario, P2B 3E7
$499,900MLS® # X12153847
House For Sale In West Nipissing (Sturgeon Falls), Ontario
3
Bedrooms
1
Bath
-
61.7 x 105 FT ; Drainage easement along back of property
Lot Size
Property Information:
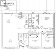
Check out this Tarion registered presale home by Jason Gagnon Construction located in a new Roy Street residential development in Sturgeon Falls! The bright split entry leads to the cleverly planned main floor layout featuring 3 bedrooms & a 4pc bathroom. The open feel of the combination living, kitchen and dining rooms are perfect for entertaining having patio doors to a deck. The primary bedroom has a walk-in closet and pocket door leading to the cheater ensuite. 2 other bedrooms complete the main level. Full unfinished basement with rough-in for future 4pc bathroom, laundry hook ups and plenty of room for your future rec-room and extra bedrooms. Pre-sold based on plans. Pick all your finishes from paint, flooring and even exterior colors. We also have 2 more plans that cater to other types of buyers! Price includes natural gas heating and central air, building lot, landscaping, full municipal services and 7 year Tarion Warranty. $499,900.00 including HST. (id:7525)
Building Features:
- Style: Detached
- Building Type: House
- Architectural Style: Bungalow
- Basement Development: Unfinished
- Basement Type: Full
- Construction Style - Attachment: Detached
- Exterior Finish: Vinyl siding, Stone
- Floor Space: 1100 - 1500 sqft
- Foundation Type:
- Heating Type: Forced air
- Heating Fuel: Natural gas
- Cooling Type: Central air conditioning, Air exchanger
- Appliances:
Property Features:
- OwnershipType: Freehold
- Property Type: Single Family
- Bedrooms: 3
- Bathrooms: 1
- Features: Carpet Free, Sump Pump
- Floor Space (approx): 1100 - 1500 Square Feet
- Irregular: Yes
- Lot Depth: 105.0 Feet
- Lot Frontage: 61.7 Feet
- Lot Size: 61.7 x 105 FT ; Drainage easement along back of property
- Structure Type: Deck
- Utility Type: Sewer - Installed, Cable - Available, Hydro - Installed
- Zoning: R1
- Sewer: Sanitary sewer
- Parking Type: No Garage
- No. of Parking Spaces: 2
Rooms:
- Kitchen Main Level 3.48 m x 3.10 m 11.42 ft x 10.17 ft
- Dining Main Level 3.48 m x 3.10 m 11.42 ft x 10.17 ft
- Living Main Level 4.62 m x 3.73 m 15.16 ft x 12.24 ft
- Primary Bedroom Main Level 3.51 m x 3.35 m 11.52 ft x 10.99 ft
- Bedroom Main Level 4.04 m x 2.82 m 13.25 ft x 9.25 ft
- Bedroom Main Level 4.01 m x 2.82 m 13.16 ft x 9.25 ft
Courtesy of: Royal LePage Northern Life Realty
This listing content provided by REALTOR.ca has been licensed by REALTOR® members of The Canadian Real Estate Association.
Additional Photos





