50 AUSTIN DRIVE, Welland (West Welland), Ontario, L3B 5N8
$728,900MLS® # X12332802
House For Sale In South Pelham, Welland (West Welland), Ontario
3
Bedrooms
3
Baths
-
16 FT ; PIE SHAPED
Lot Size
Property Information:
END UNIT - Brand New Luxury Townhome in Fonthill/Welland - Occupancy Spring 2026 Experience exceptional living in a brand-new, two-story townhome crafted by the renowned POLICELLA Homes. With a legacy of quality craftsmanship, this is an opportunity to own a home built with integrity and style in a sought-after Niagara community. This meticulously designed townhome offers a perfect blend of modern luxury and comfortable living, with an anticipated occupancy in Spring 2026. This stunning property features three spacious bedrooms, including a serene primary suite complete with a private three-piece ensuite and a generous walk-in closet. The second floor boasts a versatile loft area, ideal for a home office or cozy reading nook, as well as a conveniently located laundry room. The main floor is an entertainer's dream with a bright and airy open-concept layout. Soaring nine-foot ceilings enhance the sense of space in the living room, dinette, and kitchen.[1][2] From the dinette, patio doors open onto a private deck, seamlessly extending your living space outdoors. The heart of the home, the kitchen, is appointed with elegant granite countertops, offering both beauty and durability. A chic two-piece powder room and a practical mudroom off the attached garage complete the main level. (id:27)
Building Features:
- Style: Townhouse
- Building Type: Row / Townhouse
- Amenities:
- Basement Development: Unfinished
- Basement Type: N/A
- Construction Style - Attachment: Attached
- Exterior Finish: Brick, Stone
- Fireplace: Yes
- Floor Space: 1500 - 2000 sqft
- Foundation Type: Poured Concrete
- Heating Type: Forced air
- Heating Fuel: Natural gas
- Cooling Type: Central air conditioning
- Appliances: Water meter
Property Features:
- OwnershipType: Freehold
- Property Type: Single Family
- Bedrooms: 3
- Bathrooms: 3
- Half Bathrooms: 1
- Amenities Nearby: Golf Nearby, Schools
- Features: Lighting
- Floor Space (approx): 1500 - 2000 Square Feet
- Irregular: Yes
- Lot Frontage: 16.0 Feet
- Lot Size: 16 FT ; PIE SHAPED
- Structure Type: Porch, Deck
- Zoning: RM85
- Sewer: Sanitary sewer
- Parking Type: Attached garage, Garage
- No. of Parking Spaces: 2
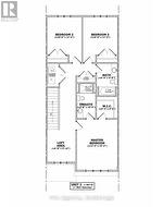
Rooms:
- Bedroom 2nd Level 4.57 m x 3.66 m 14.99 ft x 12.01 ft
- 2nd Bedroom 2nd Level 3.35 m x 3.05 m 10.99 ft x 10.01 ft
- 3rd Bedroom 2nd Level 3.35 m x 3.05 m 10.99 ft x 10.01 ft
- Laundry 2nd Level 1.00 m x 2.00 m 3.28 ft x 6.56 ft
- Loft 2nd Level 2.74 m x 2.44 m 8.99 ft x 8.01 ft
- Living Main Level 5.79 m x 3.66 m 19.00 ft x 12.01 ft
- Kitchen Main Level 3.05 m x 2.44 m 10.01 ft x 8.01 ft
- Dining Main Level 2.74 m x 2.44 m 8.99 ft x 8.01 ft
- Mudroom Main Level 1.22 m x 1.52 m 4.00 ft x 4.99 ft
Courtesy of: The Agency
This listing content provided by REALTOR.ca has been licensed by REALTOR® members of The Canadian Real Estate Association.
This listing content provided by REALTOR.ca has been licensed by REALTOR® members of The Canadian Real Estate Association.
Additional Photos




