10090 Keele Street, Vaughan, ON, L6A 1G3
$2,700,000MLS® # N12578834
House For Sale In Maple, Vaughan, Ontario
5
Bedrooms
3
Baths
-
13
Parking Spaces
Property Information:
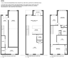
Exceptional Investment Opportunity and Development Potential in Vaughan's Premier Neighbourhoods! Situated on a generous lot, slightly over 0.5 acres, this detached property at 10090 Keele St, Maple, ON offers a rare combination of residential charm and outstanding development potential with both front and rear access. Located in one of Vaughan's most sought-after areas just minutes from key destinations including Vaughan Civic Centre, Maple GO Station, Cortellucci Vaughan Hospital, and Highway 400 (Major Mackenzie exit)the property boasts MMS zoning, allowing for a wide range of commercial, residential, community, and accessory uses. Whether you are an investor, builder, or land developer, this site presents incredible possibilities, including the potential to develop at least 11 townhouses within the permitted zoning by laws (subject to approvals). Alternatively, enjoy the existing home as is,perfect for personal use or as a high-value rental holding. Surrounded by established amenities, excellent schools, transit, and vibrant community life, with walking distance to Maple GO Station, 5 minutes to Hwy 400, and just 15 minutes to the TTC Vaughan Metropolitan Centre Station, this property is a strategic acquisition in a rapidly growing urban landscape.Don't miss this rare chance to capitalize on location, lot size, and zoning flexibility opportunities like this are few and far between! All plans and renderings are conceptual and for illustrative purposes only.
Inclusions: Dishwasher, Stove, 3 Refrigerators, Hot water tank (2023 owned), Washer/Dryer, Air conditioner(2023 owned), Furnace (2023 owned).
Exclusions : None
Property Features:
- Bedrooms: 4+1
- Bathrooms: 3
- Annual Tax Amount: $7,759
- Architectural Style: 2-Storey
- Basement: Finished
- Construction Materials: Brick, Stone
- Cooling: Central Air
- Floor Space (approx): 2500-3000 Square Feet
- Foundation Details: Unknown
- Garage Type: Attached
- Heat Type: Forced Air
- Interior Features: None
- Lot Depth: 200 Feet
- Lot Frontage: 106.1 Feet
- Parking Features: Private Double
- Pool Features: None
- Roof: Unknown
- Heat Source: Gas
- Water: Municipal
- Sewer: Sewer
- No. of Parking Spaces: 13
Rooms:
- Family Room Ground Level 10 m x 4 m 32'9" ft x 13'1" ft
- Living Ground Level 4 m x 4 m 13'1" ft x 13'1" ft
- Office Ground Level 4 m x 3 m 13'1" ft x 9'10" ft
- Dining Ground Level 6 m x 3.75 m 19'8" ft x 12'3" ft
- Kitchen Ground Level 4.7 m x 4 m 15'5" ft x 13'1" ft
- Other Ground Level 6.1 m x 8.7 m 20'0" ft x 28'6" ft Note: Solarium
- Primary Bedroom 2nd Level 4.1 m x 4.5 m 13'5" ft x 14'9" ft
- Bedroom 2nd Level 4.2 m x 3.5 m 13'9" ft x 11'5" ft
- Bedroom 2nd Level 3.4 m x 4.2 m 11'1" ft x 13'9" ft
- Bedroom 2nd Level 4.1 m x 3.6 m 13'5" ft x 11'9" ft
- Recreation Room Basement Level 4.6 m x 7.2 m 15'1" ft x 23'7" ft
Courtesy of: Royal LePage Signature Realty
Data provided by: Toronto Real Estate Board 1400 Don Mills Road, Toronto, Ontario M3B 3N1
All information displayed is believed to be accurate but is not guaranteed and should be independently verified. No warranties or representations are made of any kind. Copyright© 2021 All Rights Reserved
Additional Photos
















