816 MEADOWVALE ROAD, Toronto, Ontario, M1C 1T3
$2,900,000MLS® # E12544098
House For Sale In Toronto, Ontario
12
Bedrooms
10
Baths
-
50 x 201.4 FT
Lot Size
Property Information:
BUILD YOUR OWN LUXURY CUSTOM-BUILT HOME in the prestigious Highland Creek community! This rare offering provides over 8,000 sq. ft. of total living space. Approximately 5,000 sq. ft. above grade and 3,000 sq. ft. in the basement, Crafted for those seeking modern elegance, sophistication, and complete design freedom.Enjoy 12-ft ceilings on the main floor, 10-ft ceilings on the second, and an impressive 10.6-ft basement, creating an airy, grand atmosphere throughout. With 12 bedrooms and 10 bathrooms, the home features contemporary architecture, designer finishes, and exceptional craftsmanship. All of which can be fully customized to your taste, including the option to redesign or change the entire layout before construction begins.Buyers can enhance their home even further with exclusive upgrade options such as an elevator, butler's kitchen, garden suite, or luxury backyard swimming pool. Every detail can be tailored to your vision, offering limitless possibilities.For added peace of mind, the build is protected by a Tarion New Home Warranty, ensuring quality, security, and confidence in your investment.Extraordinary opportunity: Buyers also have the option to purchase the property and land in its current state for $1.5M before demolition and construction. Allowing complete flexibility to build at your own pace or explore future development potential.Endless possibilities to create the custom luxury home you've always envisioned. All in one of Toronto's most sought-after neighbourhoods. (id:27)
Building Features:
- Style: Detached
- Building Type: House
- Construction Style - Attachment: Detached
- Exterior Finish: Brick
- Fireplace: Yes
- Floor Space: 5000 - 100000 sqft
- Foundation Type: Concrete
- Heating Type: Forced air
- Heating Fuel: Natural gas
- Cooling Type: Central air conditioning
- Appliances: Garage door opener remote
Property Features:
- OwnershipType: Freehold
- Property Type: Single Family
- Bedrooms: 6+6
- Bathrooms: 10
- Half Bathrooms: 1
- Floor Space (approx): 5000 - 100000 Square Feet
- Irregular: Yes
- Lot Depth: 201.3 Feet
- Lot Frontage: 50.0 Feet
- Lot Size: 50 x 201.4 FT
- Sewer: Sanitary sewer
- Parking Type: Attached garage, Garage
- No. of Parking Spaces: 8
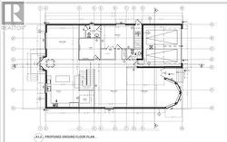
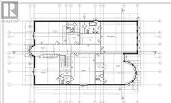
Rooms:
- 3rd Bedroom 2nd Level 14.25 m x 20.50 m 46.75 ft x 67.26 ft
- 4th Bedroom 2nd Level 14.75 m x 20.83 m 48.39 ft x 68.34 ft
- 5th Bedroom 2nd Level 17.92 m x 20.00 m 58.79 ft x 65.62 ft
- Primary Bedroom 2nd Level 23.00 m x 20.00 m 75.46 ft x 65.62 ft
- 2nd Bedroom 2nd Level 13.17 m x 20.67 m 43.21 ft x 67.81 ft
- Living Main Level 14.00 m x 18.25 m 45.93 ft x 59.88 ft
- Family Main Level 25.08 m x 15.00 m 82.28 ft x 49.21 ft
- Kitchen Main Level 15.50 m x 15.83 m 50.85 ft x 51.94 ft
- Breakfast Main Level 9.50 m x 10.00 m 31.17 ft x 32.81 ft
- Dining Main Level 9.17 m x 18.25 m 30.09 ft x 59.88 ft
- Office Main Level 13.33 m x 7.83 m 43.73 ft x 25.69 ft
- Great Room Main Level 15.42 m x 16.92 m 50.59 ft x 55.51 ft
- Bedroom Main Level 19.65 m x 17.92 m 64.47 ft x 58.79 ft
Courtesy of: CENTURY 21 LEADING EDGE CONDOSDEAL REALTY
This listing content provided by REALTOR.ca has been licensed by REALTOR® members of The Canadian Real Estate Association.
This listing content provided by REALTOR.ca has been licensed by REALTOR® members of The Canadian Real Estate Association.
Additional Photos


