LOT 38 BEER CRESCENT, Strathroy-Caradoc (NW), Ontario, N7G 3K5
$659,000MLS® # X12420276
House For Sale In Strathroy-Caradoc (NW), Ontario
4
Bedrooms
3
Baths
-
36.1 x 105 FT
Lot Size
Property Information:
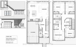
Welcome to "The Emerald." Crafted by Liersche Custom Homes, this 1,570 sq. ft. two-storey design combines modern functionality with family-friendly living. The main floor offers an open-concept kitchen, dining, and living area, plus a convenient half bath, mudroom, and indoor garage access. Upstairs, the spacious primary bedroom includes a private 4-pc ensuite and walk-in closet, joined by three additional bedrooms, a full 4-pc bath, and laundry for ultimate convenience. TO BE BUILT! Other lots and designs are available. Price based on base lot, premiums extra. Check out more plans at BUCHANANCROSSINGS.COM ** This is a linked property.** (id:27)
Building Features:
- Style: Detached
- Building Type: House
- Basement Development: Unfinished
- Basement Type: Full
- Construction Style - Attachment: Detached
- Exterior Finish: Vinyl siding
- Floor Space: 1500 - 2000 sqft
- Foundation Type: Poured Concrete
- Heating Type: Forced air
- Heating Fuel: Natural gas
- Cooling Type: Central air conditioning
Property Features:
- OwnershipType: Freehold
- Property Type: Single Family
- Bedrooms: 4
- Bathrooms: 3
- Half Bathrooms: 1
- Features: Sump Pump
- Floor Space (approx): 1500 - 2000 Square Feet
- Irregular: Yes
- Lot Depth: 105.0 Feet
- Lot Frontage: 36.1 Feet
- Lot Size: 36.1 x 105 FT
- Sewer: Sanitary sewer
- Parking Type: Attached garage, Garage
- No. of Parking Spaces: 3
Courtesy of: BLUE FOREST REALTY INC.
This listing content provided by REALTOR.ca has been licensed by REALTOR® members of The Canadian Real Estate Association.
This listing content provided by REALTOR.ca has been licensed by REALTOR® members of The Canadian Real Estate Association.
Additional Photos
