43 Judd Drive, Simcoe, ON, N3Y 4Y8
$799,900MLS® # 40777276
House For Sale In Simcoe, Ontario
3
Bedrooms
3
Baths
-
4
Parking Spaces
Property Information:
Stunning new bungalow TO BE BUILT in the quaint town of Simcoe. This modern 1512 sq. ft. home offers the perfect combination of convenience and style. Ideally located near shopping, restaurants, schools, and Highway 3 for easy commuting, this home is perfect for busy families and professionals alike. Step inside and experience the spaciousness of 9 ft ceilings throughout, with a grand 10 ft tray ceiling in the living room and raised ceiling in the second bedroom. The main floor features two generous bedrooms, including a primary suite with a luxurious ensuite bath, complete with a tiled shower and glass door. This home will feature a charming brick and stone exterior, along with a covered front porch and an expansive rear covered concrete porch—perfect for enjoying your outdoor space in comfort. The oversized garage with insulated doors provides direct access to the foyer, offering both convenience and practicality. As a new build, you’ll have the exciting opportunity to personalize your dream home by selecting cabinets, countertops, flooring, ensuite tiles, plumbing fixtures, light fixtures, front door, and paint colors. The unfinished basement provides possibilities for future expansion—whether you choose to create a cozy entertainment area, additional bedrooms, or a home office, the choice is yours. Don’t miss out on this incredible opportunity to own a brand-new home in Simcoe. Book your appointment to start picking out your finishes.
Inclusions: Carbon Monoxide Detector,Garage Door Opener,Smoke Detector
Building Features:
- Floor Space: 1512 Square Feet
Property Features:
- Bedrooms: 3
- Bathrooms: 3+0
- Acres Range: < 0.5
- Architectural Style: Bungalow
- Basement: Full, Unfinished, Sump Pump
- Construction Materials: Brick, Stone
- Cooling: Central Air
- Driveway Parking: Private Drive Double Wide
- Floor Space (approx): 1512 Square Feet
- Heating: Forced Air, Natural Gas
- Interior Features: Auto Garage Door Remote(s)
- Lot Features: Urban, Rectangular, Highway Access, Hospital, Library, Schools, Shopping Nearby
- Lot Frontage: 51.84 Feet
- Parking Features: Attached Garage, Garage Door Opener, Asphalt
- Road Frontage Type: Municipal Road
- Roof: Asphalt Shing
- Security Features: Carbon Monoxide Detector, Smoke Detector, Carbon Monoxide Detector(s), Smoke Detector(s)
- Water Source: Municipal
- Zoning: R1-A(H)
- Sewer: Sewer (Municipal)
- No. of Parking Spaces: 4
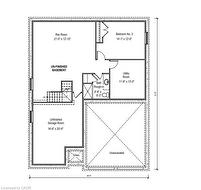
Rooms:
- Bedroom Main Level 3.35 X 3.35
- Pantry Main Level 1.55 X 1.65
- Bathroom Main Level 3.30 X 1.65
- Foyer Main Level 1.83 X 2.79
- Laundry Main Level 2.34 X 1.83
- Kitchen Main Level 2.95 X 4.34
- Dining Main Level 3.53 X 2.97
- Primary Bedroom Main Level 3.76 X 4.11
- Bedroom Basement Level 4.29 X 3.81
- Other Main Level 3.76 X 1.83
- Living Main Level 4.22 X 5.11
- Recreation Room Basement Level 6.40 X 3.91
- Bathroom Basement Level 2.67 X 2.51
- Storage Basement Level 5.03 X 6.30
- Utility Basement Level 3.56 X 3.96
Courtesy of: RE/MAX ERIE SHORES REALTY INC. BROKERAGE
This listing content provided by REALTOR.ca has been licensed by REALTOR® members of The Canadian Real Estate Association.
Additional Photos


