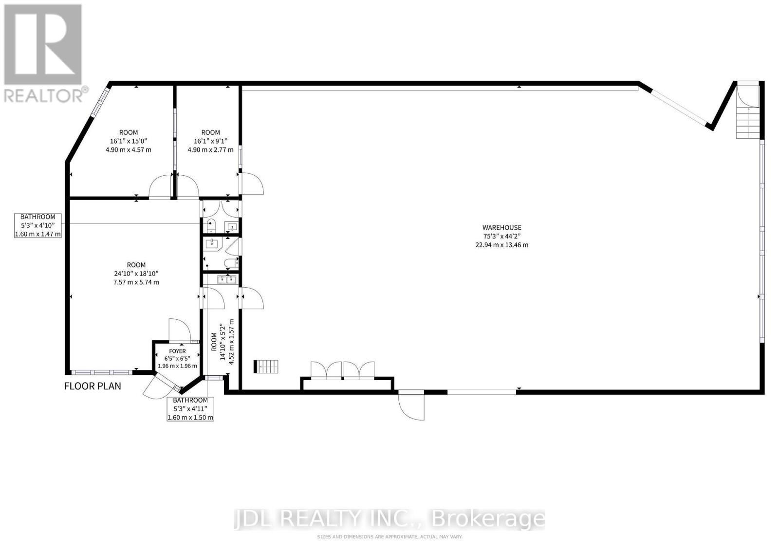
Commercial For Sale In Northeast, Mississauga, Ontario
$2,300,000None Beds
1 Bath
-
Details
-
Map
-
Demographics
-
Street View
-
Get Directions
-
Advertising
MULTIMEDIA



















