224 4TH STREET, Midland, Ontario, L4R 3T5
$550,000MLS® # S12508488
Investment For Sale In Midland, Ontario
Property Information:
This legal duplex offers a rare opportunity to generate steady rental income with three fully self-contained units, perfectly situated in Midland's vibrant downtown core. The property includes a bright and spacious 1-bedroom, 1-bath main floor unit with on-site laundry; a second main floor unit offering 2 bedrooms and 1 bath; and a well-appointed upper-level unit with 2 bedrooms, 1 bath, a bonus den, and its own laundry facilities. With a smart layout and private living spaces, this home caters perfectly to the needs of todays renters. Outside, the partially fenced backyard offers a shared outdoor area, while two separate driveways provide ample parking for tenants. Located just minutes from Georgian Bay, marinas, downtown shops and restaurants, and all essential amenities, this property is a fantastic option for those looking to invest in a high-demand rental market. Whether you're expanding your portfolio or entering the investment space for the first time, this property offers immediate income potential and long-term value. Take possession any time this is a rare find in one of Midlands most sought-after locations. (id:27)
Building Features:
- Style: Duplex
- Building Type: Duplex
- Basement Type: Crawl space
- Exterior Finish: Brick
- Fire Protection: Smoke Detectors
- Floor Space: 2000 - 2500 sqft
- Foundation Type: Concrete, Stone
- Heating Type: Forced air
- Heating Fuel: Natural gas
- Cooling Type: None
- Appliances: Dryer, Stove, Washer, Refrigerator
Property Features:
- Property Type: Multi-family
- Bedrooms: 6
- Bathrooms: 3
- Amenities Nearby: Hospital, Park, Schools
- Community Features: Community Centre
- Features: Flat site
- Floor Space (approx): 2000 - 2500 Square Feet
- Irregular: Yes
- Lot Depth: 100.0 Feet
- Lot Frontage: 68.0 Feet
- Lot Size: 68 x 100 FT ; 100.33ft x 69.15ft x 100.41ft x 69.59ft
- Structure Type: Deck, Porch, Shed
- Surface Water:
- Utility Type: Cable - Available, Sewer - Installed, Hydro - Installed
- Zoning: R2
- Sewer: Sanitary sewer
- Parking Type: No Garage
- No. of Parking Spaces: 6
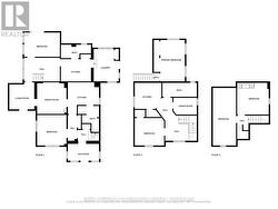
Rooms:
- 5th Bedroom 3rd Level 6.47 m x 2.63 m 21.23 ft x 8.63 ft
- Bedroom 3rd Level 3.59 m x 3.58 m 11.78 ft x 11.75 ft
- Sun Room Main Level 1.92 m x 3.53 m 6.30 ft x 11.58 ft
- Bedroom Main Level 3.43 m x 3.32 m 11.25 ft x 10.89 ft
- Kitchen Main Level 3.56 m x 3.53 m 11.68 ft x 11.58 ft
- Dining Main Level 3.56 m x 3.32 m 11.68 ft x 10.89 ft
- Living Main Level 3.04 m x 2.83 m 9.97 ft x 9.28 ft
- Mudroom Main Level 2.67 m x 4.04 m 8.76 ft x 13.25 ft
- 2nd Bedroom Main Level 2.73 m x 4.03 m 8.96 ft x 13.22 ft
- Kitchen Main Level 2.51 m x 3.51 m 8.23 ft x 11.52 ft
- Laundry Main Level 3.65 m x 2.82 m 11.98 ft x 9.25 ft
- 3rd Bedroom Upper Level 3.09 m x 3.32 m 10.14 ft x 10.89 ft
- Kitchen Upper Level 2.94 m x 3.02 m 9.65 ft x 9.91 ft
- 4th Bedroom Upper Level 4.66 m x 2.78 m 15.29 ft x 9.12 ft
- Dining Upper Level 1.90 m x 2.63 m 6.23 ft x 8.63 ft
- Sitting Upper Level 2.84 m x 2.71 m 9.32 ft x 8.89 ft
Courtesy of: Keller Williams Co-Elevation Realty, Brokerage
This listing content provided by REALTOR.ca has been licensed by REALTOR® members of The Canadian Real Estate Association.
This listing content provided by REALTOR.ca has been licensed by REALTOR® members of The Canadian Real Estate Association.
Additional Photos
















