11709 TRACEY STREET, Malahide (Springfield), Ontario, N0L 2J0
$650,000MLS® # X12529782
House For Sale In Malahide (Springfield), Ontario
5
Bedrooms
3
Baths
-
132 x 132 FT
Lot Size
Property Information:
Spacious Village Home in Springfield, with In-Law Suite & Detached Garage/Shop. This versatile split-level home offers room to grow with a private in-law suite, oversized detached garage/shop, and a generous corner lot - ideal for families, hobbyists, or multi-generational living. Main House Highlights:Bright kitchen with ample cabinets, built-in appliances, and open eating area. Patio doors open to a west facing deck, with pergola rafters, overlooking the backyard. Four bedrooms and two bathrooms, a main floor living room, and lower level family room. The lowest level is unfinished basement for mechanicals, storage, and stairway to the former garage that is now converted to general storage. In-Law Suite: Located above the former built-in garage. Open-concept studio layout with combination bedroom/living room, a separate kitchen area, bathroom, and laundry. Ideal for extended family or guests. Outdoor Features: Double Lot is 132' x 132' on a corner with mature trees and driveway access to the home and detached garage/shop. Fenced yard section for pets and children plus an Open area with fire pit and horseshoe pits for outdoor enjoyment. Side yard at the end of garage/shop offers ample parking for RV, boat, or extra vehicles. Detached Garage/Shop: Oversized, 1000 sq.ft., with natural gas heat and dedicated breaker panel. Perfect for contractors, hobbyists, or secure storage. Additional features include town sewer, drilled well. This property blends space for large families, comfort, flexibility, and outdoor living in a welcoming village setting. (id:27)
Building Features:
- Style: Detached
- Building Type: House
- Amenities:
- Basement Type: Full
- Construction Style - Attachment: Detached
- Construction Style - Split Level: Sidesplit
- Exterior Finish: Brick, Stucco
- Fireplace Type: Insert
- Floor Space: 2000 - 2500 sqft
- Foundation Type: Poured Concrete
- Heating Type: Forced air
- Heating Fuel: Natural gas
- Cooling Type: Central air conditioning
- Appliances: Range, Dishwasher, Dryer, Microwave, Oven
Property Features:
- OwnershipType: Freehold
- Property Type: Single Family
- Bedrooms: 4+1
- Bathrooms: 3
- Features: Level, Guest Suite
- Floor Space (approx): 2000 - 2500 Square Feet
- Irregular: Yes
- Lot Depth: 132.0 Feet
- Lot Frontage: 132.0 Feet
- Lot Size: 132 x 132 FT
- Structure Type: Deck, Workshop
- Utility Type: Sewer - Installed, Hydro - Installed, Cable - Installed
- Zoning: VR1
- Sewer: Sanitary sewer
- Parking Type: Detached garage, Garage
- No. of Parking Spaces: 4
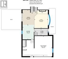
Rooms:
- Bedroom 2nd Level 3.59 m x 3.16 m 11.78 ft x 10.37 ft
- Bedroom 2nd Level 3.57 m x 3.15 m 11.71 ft x 10.33 ft
- Primary Bedroom 2nd Level 3.91 m x 4.19 m 12.83 ft x 13.75 ft
- Laundry Basement Level 2.02 m x 2.06 m 6.63 ft x 6.76 ft
- Family Basement Level 3.96 m x 6.54 m 12.99 ft x 21.46 ft
- Bedroom Basement Level 3.22 m x 4.36 m 10.56 ft x 14.30 ft
- Dining Main Level 4.31 m x 4.40 m 14.14 ft x 14.44 ft
- Foyer Main Level 3.98 m x 1.98 m 13.06 ft x 6.50 ft
- Kitchen Main Level 3.43 m x 4.27 m 11.25 ft x 14.01 ft
- Living Main Level 3.99 m x 5.29 m 13.09 ft x 17.36 ft
- Bedroom Upper Level 5.36 m x 6.56 m 17.59 ft x 21.52 ft
- Kitchen Upper Level 3.44 m x 3.06 m 11.29 ft x 10.04 ft
Courtesy of: RE/MAX CENTRE CITY REALTY INC.
This listing content provided by REALTOR.ca has been licensed by REALTOR® members of The Canadian Real Estate Association.
This listing content provided by REALTOR.ca has been licensed by REALTOR® members of The Canadian Real Estate Association.
Additional Photos












