419 BASE LINE ROAD E, London South (South G), Ontario, N6C 2P5
$499,900MLS® # X12525298
Sales Representative
Royal LePage Triland Premier
Royal LePage Triland Premier, Brokerage*
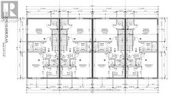
Additional Photos



