84347 KENT STREET, Huron East (Grey), Ontario, N0G 1H0
$1,050,000MLS® # X12415230
House For Sale In Huron East (Grey), Ontario
3
Bedrooms
3
Baths
-
133 x 151 FT
Lot Size
Property Information:
Welcome to Cranbrook Estates, a peaceful countryside neighbourhood surrounded by picturesque farm fields and just steps from the tranquil Maitland River. This brand-new home will be built by the reputable Feeney Design Build Ltd, known for their exceptional craftsmanship and attention to detail.Enjoy the serenity of country living while staying conveniently close to modern amenities. Brussels is just six minutes away, offering essentials like a grocery store, LCBO, variety store, Canada Post, spa, Home Hardware, and homestyle restaurant. Families will also appreciate Northwoods Public School in nearby Ethel, providing a warm and rural elementary school experience.For even more shopping, dining, and recreational options, Listowel is just 20 minutes away. Here you'll find restaurants, boutiques, bakeries, grocery stores, a hospital & healthcare, schools, daycares, and thriving recreational facilities such as squash courts, an indoor soccer field and track, gyms, and countless sports programs for kids and adults alike.This property comes serviced with a drilled well and septic system. Cranbrook Estates offers the perfect blend of quiet rural living with the convenience of nearby towns. This is your chance to escape the noise and stress of city life and create the home you've always dreamed of in a sought-after country community. Reach out for more information and how we can make your dream home a reality! (id:27)
Building Features:
- Style: Detached
- Building Type: House
- Amenities:
- Basement Development: Unfinished
- Basement Type: Full
- Construction Style - Attachment: Detached
- Exterior Finish: Vinyl siding, Stone
- Fireplace: Yes
- Floor Space: 2000 - 2500 sqft
- Foundation Type: Poured Concrete
- Heating Type: Forced air
- Heating Fuel: Propane
- Cooling Type: Central air conditioning
- Appliances:
Property Features:
- OwnershipType: Freehold
- Property Type: Single Family
- Bedrooms: 3
- Bathrooms: 3
- Half Bathrooms: 1
- Community Features: School Bus
- Floor Space (approx): 2000 - 2500 Square Feet
- Irregular: Yes
- Lot Depth: 151.0 Feet
- Lot Frontage: 133.0 Feet
- Lot Size: 133 x 151 FT
- Utility Type: Hydro - Available
- View Type: View
- Zoning: VR1
- Sewer: Septic System
- Parking Type: Attached garage, Garage
- No. of Parking Spaces: 6
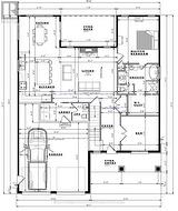
Rooms:
- Bathroom 2nd Level 2.13 m x 1.58 m 6.99 ft x 5.18 ft
- Bedroom 2nd Level 5.08 m x 4.10 m 16.67 ft x 13.45 ft
- Bedroom 2nd Level 3.66 m x 6.71 m 12.01 ft x 22.01 ft
- Dining Main Level 3.91 m x 3.35 m 12.83 ft x 10.99 ft
- Kitchen Main Level 3.91 m x 4.57 m 12.83 ft x 14.99 ft
- Living Main Level 5.59 m x 5.28 m 18.34 ft x 17.32 ft
- Bathroom Main Level 3.86 m x 2.89 m 12.66 ft x 9.48 ft
- Laundry Main Level 2.99 m x 1.73 m 9.81 ft x 5.68 ft
- Bathroom Main Level 1.58 m x 1.73 m 5.18 ft x 5.68 ft
- Primary Bedroom Main Level 3.96 m x 4.52 m 12.99 ft x 14.83 ft
- Den Main Level 3.35 m x 3.65 m 10.99 ft x 11.98 ft
Courtesy of: Royal LePage Heartland Realty
This listing content provided by REALTOR.ca has been licensed by REALTOR® members of The Canadian Real Estate Association.
Additional Photos




