12 Truax Crescent, Essa, ON, L0M 1B4
$729,900MLS® # 40781998
House For Sale In Essa, Ontario
3
Bedrooms
3
Baths
-
3
Parking Spaces
Property Information:
Step inside this beautifully updated 3-bedroom, 2.5-bath home and you'll instantly feel how every detail has been designed for easy living and modern comfort. The open-concept main floor invites conversation, with a sleek kitchen featuring stainless-steel appliances, a breakfast bar for casual mornings, and clear sight lines to the bright living area - perfect for hosting friends or keeping an eye on little ones at play. Upstairs, the spacious primary suite feels like a retreat, complete with a walk-in closet and private ensuite bath. Two additional bedrooms offer flexibility for kids, guests, or a dedicated home office.Downstairs, a finished basement provides that extra space every family craves - movie nights, a playroom, or a quiet workspace, all ready to adapt as life evolves. Step outside to your own backyard oasis. A large, lush lawn, landscaped gardens, and a deck ideal for BBQs set the stage for summer gatherings. There's even a shed with loft storage and electricity and a fire-pit area - a rare find at this price point. Set in a friendly neighbourhood just a block from the park, you'll often find families walking dogs or children riding bikes after school. With convenient grocery shopping just 5 minutes away in Angus and only 12 minutes to Barrie, this home strikes the perfect balance between small-town warmth and city convenience. Modern finishes, thoughtful updates, and a community; oriented location. 12 Truax Cres is more than a house; it's where your next chapter begins.
Inclusions: Built-in Microwave,Dishwasher,Dryer,Garage Door Opener,Refrigerator,Stove,Washer
Building Features:
- Floor Space: 1702 Square Feet
Property Features:
- Bedrooms: 3
- Bathrooms: 2+1
- Acres Range: < 0.5
- Architectural Style: Two Story
- Basement: Full, Finished
- Construction Materials: Brick Veneer, Vinyl Siding
- Cooling: Central Air
- Driveway Parking: Private Drive Double Wide
- Exterior Features: Storage Buildings
- Floor Space (approx): 1702 Square Feet
- Heating: Forced Air, Natural Gas
- Interior Features: Auto Garage Door Remote(s)
- Lot Depth: 150.06 Feet
- Lot Features: Urban, Near Golf Course, Greenbelt, Park
- Lot Frontage: 32.81 Feet
- Parking Features: Attached Garage, Garage Door Opener, Asphalt
- Roof: Asphalt Shing
- Water Source: Municipal
- Zoning: R1
- Sewer: Sanitary
- No. of Parking Spaces: 3
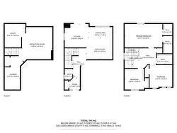
Rooms:
- Recreation Room Other level :Lower 4.44 X 4.75
- Utility Other level :Lower 3.02 X 3.43
- Laundry Other level :Lower 2.21 X 4.90
- Kitchen Main Level 3.51 X 3.43
- Dining Main Level 3.48 X 1.60
- Living Main Level 3.81 X 1.60
- Foyer Main Level 1.57 X 1.68
- Bathroom Main Level 1.12 X 1.50
- Other 2nd Level 2.03 X 1.22
- Primary Bedroom 2nd Level 5.51 X 3.43
- Bedroom 2nd Level 2.84 X 3.02
- Bedroom 2nd Level 3.33 X 3.35
- Bathroom 2nd Level 2.24 X 1.50
Courtesy of: Engel & Volkers Barrie Brokerage
Data provided by: Barrie & District Association of REALTORS® 676 Veterans Dr., Barrie, Ontario L9J 0H6
All information displayed is believed to be accurate but is not guaranteed and should be independently verified. No warranties or representations are made of any kind. Copyright© 2021 All Rights Reserved
Additional Photos




















