Button CopyPathCircle CloseCircle Left ArrowArrow Down Icon GreyClosecirclecircleBurger
  • Advertising

LOT 22 HURONTARIO STREET, Caledon, Ontario, L7K 1W7

MLS® # W12781610
Vacant Land For Sale In Caledon, Ontario
$799,000

None Beds

Lot 22 Hurontario Street, Caledon, ON
Lot 22 Hurontario Street, Caledon, ON
Lot 22 Hurontario Street, Caledon, ON
Lot 22 Hurontario Street, Caledon, ON
Lot 22 Hurontario Street, Caledon, ON
Lot 22 Hurontario Street, Caledon, ON
Lot 22 Hurontario Street, Caledon, ON
Lot 22 Hurontario Street, Caledon, ON
Lot 22 Hurontario Street, Caledon, ON
Lot 22 Hurontario Street, Caledon, ON
  • Advertising
LOT 22 HURONTARIO STREET, Caledon, Ontario, L7K 1W7
$799,000

Property Information:

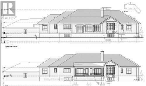
Rare build-ready opportunity in the Town of Caledon.Set on a picturesque 12+ acre parcel, Lot 22 Hurontario is offered as vacant land with the foundation and basement already completed and approved architectural plans for an impressive 3,234 sq. ft. custom bungalow. The property offers exceptional privacy and tranquility, making it an ideal setting for a refined country estate.The approved plans envision a thoughtfully designed luxury residence featuring three bedrooms and four bathrooms, expansive principal rooms, and a generous family living area ideal for both everyday comfort and entertaining. A separate chef's kitchen has been incorporated to provide additional prep and cooking space. Design highlights include soaring ceilings, a large covered rear porch, and premium finishes throughout.Extensive planning, design, and approval work has already been completed, providing a streamlined path to construction with the opportunity for buyer review and customization.Property is being sold as vacant land with approved plans. Buyers are responsible for completing their own due diligence with respect to zoning, permits, development charges, construction requirements, and intended use. Images are architectural renderings only. No dwelling has been constructed beyond the existing foundation. (id:27)

Building Features:

  • Basement Type: None
  • Floor Space: 0 - 699 sqft
  • Foundation Type: Concrete
  • Heating Type: Other

Property Features:

  • Property Type: Vacant Land
  • Amenities Nearby: Golf Nearby
  • Features: Level lot, Wooded area, Irregular lot size, Ravine, Flat site, Conservation/green belt
  • Floor Space (approx): 0 - 699 Square Feet
  • Irregular: Yes
  • Lot Depth: 2220.7 Feet
  • Lot Frontage: 58.2 Feet
  • Lot Size: 58.2 x 2220.7 FT
  • Utility Type: Cable - Available, Hydro - Installed
  • Zoning: Residential
  • Parking Type: No Garage
  • No. of Parking Spaces: 50

Courtesy of: HOMELIFE/MIRACLE REALTY LTD

REALTOR.ca  

Location of LOT 22 HURONTARIO STREET, Caledon, Ontario, L7K 1W7

Demographic Information of LOT 22 HURONTARIO STREET, Caledon, Ontario, L7K 1W7

Life Stage

Middle-Aged with Teens

Employment Type

Mixed

Average Household Income

$176,869.18

Average Number of Children

1.74

Household Population

Household Structure

Age of Population

Education

Education Level

No certificate/diploma/degree

10.28 %

High school certificate or equivalent

31.24 %

Apprenticeship trade certificate/diploma

7.16 %

College/non-university certificate

19.68 %

University certificate (below bachelor)

2.73 %

University Degree

28.91 %

Commuter

Travel To Work

By Car

88.3 %

By Public Transit

0.0 %

By Walking

6.63 %

By Bicycle

0.0 %

By Other Methods

5.07 %

Cultural Diversity

Knowledge of Official Language

Mother Tongue

Building Information

Building Type

Apartments (Low and High Rise)

Houses

100.0 %

Own Vs. Rent