Lot 5018 400 Zaffre Drive, Middle Sackville, NS, B4E 3C3
$719,900MLS® # 202522682
House For Sale In Middle Sackville, Nova Scotia
4
Bedrooms
3
Baths
Property Information:
COME AND SEE US AT OUR MODEL HOME AT 242 Zaffre Drive EVERY SATURDAY & SUNDAY FROM 2-4 PM. Amara Developments is thrilled to introduce “The Cortina" in the newest phase of Indigo Shores in Middle Sackville, Nova Scotia. Discover "The Cortina" - the epitome of modern living in this stunning newly constructed modern craftsman split-entry home ideally located a short commute from the city yet nestled in a serene country setting, offering 3+1 bedrooms, 3 full baths, and an array of premium features and "zen-factor". This brand-new design is an improvement in size from our popular Aspen plan and features a variety of compelling new qualities. A high-end kitchen awaits with stone counters, full-height cabinets, and soft-close drawers, while the bright living room invites relaxation with wide plank flooring. Luxurious touches abound, including a primary bedroom with a walk-in closet and an ensuite featuring a double floating vanity and custom shower. Contemporary finishes such as custom hardwood stairs, modern lighting, and designer tiles enhance the aesthetic, complemented by an energy-efficient heat pump. Additional highlights include an enhanced kitchen, a double-car garage, and a fourth bedroom in the basement with a full bath. Escape the ordinary and embrace modern comfort in the burbs'— discover all the details and features of this stunning home and private oasis. More house plans and lots to come!
Property Features:
- Bedrooms: 4
- Bathrooms: 3
- Basement: Fully Developed
- Building Style: 2 Level
- Exterior Finish: Vinyl
- Floor Space (approx): 1951 Square Feet
- Flooring: Ceramic, Laminate
- Foundation: Concrete
- Fuel Type: Electric
- Heating/Cooling Type: Baseboard, Heat Pump -Ductless, nsar_table_htngclngty_lkp_1_1435*
- Property Size: 1 to 2.99 Acres
- Rental Equipment: None
- Roof: Asphalt Shingle
- Sewage Disposal: Septic
- Title to Land: Freehold
- Utilities: Electricity, Telephone
- Water Source: Drilled Well
- Garage: Attached, Heated, Wired
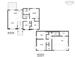
Rooms:
- Living Main Level 12'10 x 14'
- Kitchen Main Level 20'6 x 11'
- Bathroom Main Level N/A
- Primary Bedroom Main Level 13' x 13'2
- Ensuite Bathroom Main Level N/A
- Bedroom Main Level 9' x 10'8
- Bedroom Main Level 10'4 x 10'8
- Recreation Room Lower Level 12' x 14'6
- Bedroom Lower Level 12' x 10'
- Bedroom Lower Level 9' x 5'6
- Utility Lower Level N/A
- Other Lower Level 22' x 18'6 - GARAGE
- Bathroom Lower Level N/A
Courtesy of: Royal LePage Atlantic
Data provided by: Nova Scotia Association of REALTORS® 68 Highfield Park Drive, Suite 112, Dartmouth, Nova Scotia B3A 0E4
All information displayed is believed to be accurate but is not guaranteed and should be independently verified. No warranties or representations are made of any kind. Copyright© 2021 All Rights Reserved
Additional Photos



