GW003 20 Gardenia Way, Dartmouth, NS, B2X 0C7
$989,900MLS® # 202524237
House For Sale In Dartmouth, Nova Scotia
5
Bedrooms
4
Baths
-
Yes
Fireplace
Property Information:
Introducing The Elizabeth on Gardenia Way- the five-bedroom home you've been waiting for. Cresco's newest two-storey design with a walkout basement offers 3,340 sqft of luxurious living space in The Parks of Lake Charles. Thoughtfully designed with today's most desirable family features, this home includes five bedrooms, 3.5 baths, a double-car garage, mudroom, walk-in pantry, and a fully ducted heat pump with natural gas backup. With 9-foot ceilings on both the main and lower levels, the interior feels open, bright, and inviting. Upstairs, the primary suite is complemented by a spacious walk-in closet, while three additional bedrooms on the same level deliver one of the most sought-after layouts for families. Blending comfort, style, and functionality, The Elizabeth is truly a home that checks every box. Located just off the Waverley Road, this community fosters an active lifestyle with parks, trails and quick access to all the shops, restaurants, recreation and more to come!
Property Features:
- Bedrooms: 5
- Bathrooms: 4
- Appliances Included: None
- Basement: Fully Developed, Walkout
- Building Style: 2 Storey
- Community Features: Park, Playground, Public Transit, Recreation Center, School Bus Service, Shopping
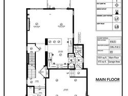
- Documents on File: Floor Plan, See Instr. To Members
- Driveway/Parking: Double, Paved
- Exterior Finish: Steel, Stone, Vinyl
- Features: Ensuite Bath, HRV (Heat Rcvry Ventln), Electric Fireplace, See Remarks
- Floor Space (approx): 3340 Square Feet
- Flooring: Engineered Hardwood, Laminate, Porcelain
- Foundation: Concrete
- Fuel Type: Electric, Natural Gas
- Heating/Cooling Type: Heat Pump -Ducted
- Land Features: Landscaped
- Property Size: Under 0.5 Acres
- Rental Equipment: None
- Roof: Asphalt Shingle
- Sewage Disposal: Municipal
- Structures: Deck
- Title to Land: Freehold
- Utilities: Cable, Electricity, High Speed Internet, Natural Gas, Telephone
- Water Source: Municipal
- Garage: Double, Built-In, Heated, Wired
Rooms:
- Foyer Main Level 5.5 x 7.9
- Bathroom Main Level 2 Piece
- Living Main Level 11.7 x 18.1
- Dining Main Level 11.5 x 14.1
- Kitchen Main Level 12.9 x 15.2
- Other Main Level 5.1 x 7.7
- Primary Bedroom 2nd Level 13.2 x 17.6
- Ensuite Bathroom 2nd Level 5 piece
- Bedroom 2nd Level 11.8 x 15.3
- Bedroom 2nd Level 11.11 x 13.8
- Bedroom 2nd Level 11 x 13.8
- Bathroom 2nd Level 4 Piece
- Laundry 2nd Level 3.2 x 6
- Recreation Room Lower Level 11.3 x 16.5
- Bedroom Lower Level 9.1 x 16.5
- Bathroom Lower Level 4 Piece
Courtesy of: Royal LePage Atlantic
Data provided by: Nova Scotia Association of REALTORS® 68 Highfield Park Drive, Suite 112, Dartmouth, Nova Scotia B3A 0E4
All information displayed is believed to be accurate but is not guaranteed and should be independently verified. No warranties or representations are made of any kind. Copyright© 2021 All Rights Reserved
Additional Photos



