141A Roundhouse Drive, Bridgewater, NS, B4V 9A9
$598,000MLS® # 202516197
House For Sale In Bridgewater, Nova Scotia
3
Bedrooms
3
Baths
Property Information:
Discover this soon to be constructed stunning residential duplex located on the highly desirable Roundhouse Drive. This remarkable 2,067 sq. ft. home presents an excellent opportunity for the astute buyer, featuring 3 spacious bedrooms, den/office/4th bedroom and 3 well-appointed bathrooms. The main level offers in floor radiant heating and is where you’ll find the primary bedroom, complete with a luxurious 4-piece ensuite and a generous walk-in closet. Venture to the upper level, where two additional bedrooms are accompanied by a bonus area and another of the bathrooms. The impressive 9-foot ceilings on the homes lower level allow for an abundance of natural light, enhancing the overall ambiance. The open-concept layout of the kitchen, dining, and great rooms creates a seamless flow for effortless living and entertaining. Practical features include ample storage, a utility room, and a convenient laundry area located on the main floor. The double garage opens into a mudroom that easily connects to the laundry and utility spaces, ensuring a smooth transition for bringing in groceries and other items. This home is not just a residence; it's a lifestyle waiting for you and built proudly by Ziegler Homes Ltd.
Property Features:
- Bedrooms: 3
- Bathrooms: 3
- Basement: None
- Building Style: 2 Storey
- Community Features: Golf Course, Park, Recreation Center, School Bus Service, Shopping
- Driveway/Parking: Paved
- Floor Space (approx): 2067 Square Feet
- Flooring:
- Foundation: Slab
- Fuel Type: Electric
- Heating/Cooling Type: Baseboard, Heat Pump -Ductless, In Floor, Radiant, nsar_table_htngclngty_lkp_1_1435*
- Land Features: Partial Landscaped
- Property Size: 3 to 9.99 Acres
- Rental Equipment: None
- Roof: Asphalt Shingle
- Sewage Disposal: Municipal
- Title to Land: Freehold
- Utilities: Cable, Electricity, High Speed Internet, Telephone
- Water Source: Municipal
- Garage: Attached, Double, Heated, Wired, Other
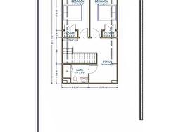
Rooms:
- Primary Bedroom Main Level 12'6 X 13'4
- Other Main Level 6'4 X 6'8
- Ensuite Bathroom Main Level 5'4 X 10'6
- Den Main Level 10'5 X 13'3
- Kitchen Main Level 10'8 X 11'1
- Dining Main Level 10'8 X 9'3
- Great Room Main Level 13'5 X 20'4
- Utility Main Level 3'0 X 6'6
- Laundry Main Level 5'4 X 6'8
- Other Main Level 5'0 X 4'1
- Bathroom Main Level 10'5 X 6'1
- Bedroom 2nd Level 9'8 X 12'0
- Bedroom 2nd Level 9'8 X 12'0
- Other 2nd Level 7'1 X 16'5
- Bathroom 2nd Level 6'3 X 6'9
Courtesy of: ViewPoint Realty Services Inc.(Lunenburg)
Data provided by: Nova Scotia Association of REALTORS® 68 Highfield Park Drive, Suite 112, Dartmouth, Nova Scotia B3A 0E4
All information displayed is believed to be accurate but is not guaranteed and should be independently verified. No warranties or representations are made of any kind. Copyright© 2021 All Rights Reserved
Additional Photos

















