$549,900

House For Sale In Shape 24, Bedford, Nova Scotia

$549,900
  • 4

    Bedrooms

  • 2

    Baths

  • Yes

    Fireplace

Property Information:

This beautiful home stands out for the exceptional quality of its interior finish. Everywhere you look, the design choices — from the flooring and colour palette to the kitchen and bathrooms — have been tastefully selected to complement the home’s traditional character. It has also been meticulously maintained; a quick walk through will show just how pristine it truly is. Recent updates include a new hot water tank (2023), ductless heat pump (2020) ductless heat pump in lower level (2024), and a re-shingled roof (2015), new washer and dryer (2023). In addition to the efficient hot water baseboard heating, the home features a propane fireplace insert in the living room, adding warmth and charm throughout. The spacious family room bar and small chest freezer in the laundry room are included. With driveways on both sides, there’s ample parking for family and guests. Situated on a quiet, tree-lined street, this home offers convenient living while being just minutes from shopping, amenities, and convenient highway access to the airport. A perfect blend of comfort, tradition, and thoughtful updates — ready for you to move in and enjoy.

Property Features:

  • Bedrooms: 4
  • Bathrooms: 2
  • Appliances Included: Stove, Dishwasher, Dryer, Washer, Freezer, Microwave, Refrigerator
  • Basement: Fully Developed
  • Building Style: Split Entry
  • Built in: 1973
  • Community Features: Park, Playground, Public Transit, Recreation Center, School Bus Service, Shopping, Marina
  • Driveway/Parking: Multi, Paved
  • Exterior Finish: Vinyl
  • Features: Balcony
  • Floor Space (approx): 2000 Square Feet
  • Flooring: Ceramic, Engineered Hardwood, Hardwood
  • Foundation: Concrete
  • Fuel Type: Electric, Propane
  • Heating/Cooling Type: Fireplace, Heat Pump -Ductless
  • Land Features: Landscaped, Level
  • Property Size: Under 0.5 Acres
  • Rental Equipment: Propane Tank
  • Roof: Asphalt Shingle
  • Sewage Disposal: Municipal
  • Structures: Deck, Shed
  • Title to Land: Freehold
  • Utilities: Cable, Electricity, High Speed Internet, Telephone
  • Water Source: Municipal
  • Garage: None

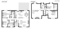
Rooms:

  • Living Main Level 15'2x13'5
  • Dining Main Level 10'6x7'7
  • Kitchen Main Level 13'9x1-'6
  • Primary Bedroom Main Level 14'1x10'6
  • Bedroom Main Level 8'2x13'5
  • Bedroom Main Level 9'11x7'8
  • Bathroom Main Level 10'6x4'11
  • Living Basement Level 21'7"x15'7"
  • Bedroom Basement Level 14'6x11'2
  • Bathroom Basement Level 8'6x5'8
  • Laundry Basement Level 11'1x9'8

Courtesy of: RE/MAX Nova (Halifax)

Data provided by: Nova Scotia Association of REALTORS® 68 Highfield Park Drive, Suite 112, Dartmouth, Nova Scotia B3A 0E4
All information displayed is believed to be accurate but is not guaranteed and should be independently verified. No warranties or representations are made of any kind. Copyright© 2021 All Rights Reserved