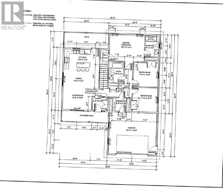
House For Sale In Pouch Cove, Newfoundland and Labrador
$499,900 QuickQuoteTM: Not Available3 Beds
2 Baths
-
Details
-
Map
-
Demographics
-
Street View
-
Get Directions
-
Advertising

