54 Middle Ledge Drive, Logy Bay, Newfoundland & Labrador, A1K 0L5
$1,250,000MLS® # 1285060
House For Sale In Logy Bay, Newfoundland and Labrador
4
Bedrooms
4
Baths
-
4,050 Sq M
Lot Size
Property Information:
Welcome to 54 (Lot 37) Middle Ledge, a stunning custom home opportunity in the highly sought-after Wexford Estates. This exceptional property offers the perfect blend of privacy, luxury and convenience. Situated on a full-acre lot overlooking a tranquil pond and direct frontage along the esteemed Bally Hally Golf Course, a truly rare setting where natural beauty and elite living converge. Nestled within the scenic community of Logy Bay - Middle Cove - Outer Cove, you’ll enjoy the perfect harmony of urban convenience and the charm of a rural setting with close proximity to St. John’s, Stavanger Drive, Middle Cove Beach and the world-renowned East Coast Trail. Experience unparalleled craftsmanship with Alterra Building Solutions, delivering a seamless build experience. This architecturally designed residence by award winning Peter Blackie, will offer an exceptional level of sophistication with 9-foot ceilings on the main floor to enhance the open-concept layout. Thoughtfully designed with 4 spacious bedrooms and 3.5 bathrooms featuring a sunroom, guest bedroom on the main floor, a large attached garage. Heated main floors, 400 amp panel, multi-zone heating and cooling system, generous allowances and a new year home warranty to name a few key features. The second floor features a luxe primary suite with panoramic views of the golf course, a spa-inspired 5-piece ensuite and walk-in closet. A versatile flex space within the primary suite offers endless possibilities for a private office or a lounge. You’ll also find two additional generously-sized bedrooms and a centrally located laundry room designed for effortless, elevated living. Currently being offered as a pre-sale; however, construction is anticipated to begin in the Spring and ready for occupancy early 2026. The builder is flexible to customizing the plans to meet your needs, ensuring a personalized touch. Don’t miss this opportunity for a quality, thoughtfully designed home in a prime location. (id:27)
Building Features:
- Style: Detached
- Building Type: House
- Air Conditioning: Yes
- Architectural Style: 2 Level
- Construction Style - Attachment: Detached
- Exterior Finish: Other, Vinyl siding, Wood
- Fireplace Fuel: Wood
- Fireplace Type: Woodstove
- Floor Space: 6200 sqft
- Flooring Type: Flooring Type
- Foundation Type: Concrete Slab
- Heating Type: Baseboard heaters, Heat Pump
- Heating Fuel: Electric, Wood, Electric
- Cooling Type: Air exchanger
Property Features:
- OwnershipType: Freehold
- Property Type: Single Family
- Bedrooms: 4
- Bathrooms: 4
- Half Bathrooms: 1
- Built in: 2025
- Floor Space (approx): 6200 Square Feet
- Irregular: Yes
- Landscape Features: Landscaped
- Lot Size: 4,050 Sq M
- Structure Type: Sundeck
- Zoning: RES
- Sewer: Septic tank
- Parking Type: Attached garage
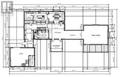
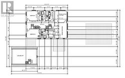
Rooms:
- Ensuite Bathroom 2nd Level 9 x 11
- Office 2nd Level 15 x 16
- Bedroom 2nd Level 12 x 14
- Bedroom 2nd Level 12 x 14
- Primary Bedroom 2nd Level 15 x 20
- Other Main Level 26 x 33
- Other Main Level 15 x 15
- Dining Main Level 11 x 20
- Bedroom Main Level 13 x 11
- Family Main Level 27 x 34
- Kitchen Main Level 16 x 18
Courtesy of: RE/MAX Infinity Realty Inc. - Sheraton Hotel
This listing content provided by REALTOR.ca has been licensed by REALTOR® members of The Canadian Real Estate Association.
This listing content provided by REALTOR.ca has been licensed by REALTOR® members of The Canadian Real Estate Association.
Additional Photos







