11 Haleys Place, Flatrock, Newfoundland & Labrador, A1K 0J9
$399,900MLS® # 1292182
House For Sale In Flatrock, Newfoundland and Labrador
3
Bedrooms
2
Baths
-
1.07 acre
Lot Size
Property Information:
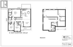
Executive home on a cul-de-sac in picturesque Flatrock. Haley’s Place in Flatrock is home to several larger executive style homes. Over 1200 square foot developed residence will boast high end finishes throughout. This new build will be a high-end bungalow on a large lot. Features large eat-in kitchen and living room on the main as well as 3 good sized bedrooms. Primary bedroom has an ensuite and walk in closet, and another full bathroom on the main. The undeveloped lower level presents a blank canvas for your future development—whether you're dreaming of a home theatre, gym, family room, bedroom, or extra storage. Flatrock is unquestionably one of the more scenic communities on the Avalon Peninsula. Only 15 minutes from St. John’s and the Stavanger Drive shopping and dining district. Come on, take a stroll along the Marine Drive and you will be impressed with the character and scenery of Flatrock. (id:27)
Building Features:
- Style: Detached
- Building Type: House
- Architectural Style: Bungalow
- Construction Style - Attachment: Detached
- Exterior Finish: Vinyl siding
- Floor Space: 2460 sqft
- Flooring Type: Flooring Type
- Foundation Type: Concrete
- Heating Fuel: Electric
Property Features:
- OwnershipType: Freehold
- Property Type: Single Family
- Bedrooms: 3
- Bathrooms: 2
- Access Type: Year-round access
- Amenities Nearby: Recreation
- Built in: 2025
- Floor Space (approx): 2460 Square Feet
- Irregular: Yes
- Landscape Features: Partially landscaped
- Lot Size: 1.07 acre
- Zoning: RES
- Sewer: Septic tank
Rooms:
- Bathroom Main Level 4 pc
- Ensuite Bathroom Main Level 4 pc
- Bedroom Main Level 10 x 10
- Bedroom Main Level 9 x 10
- Primary Bedroom Main Level 14 x 13
- Kitchen Main Level 16.2 x 12
- Living Main Level 11 x 15
Courtesy of: RE/MAX Realty Specialists
This listing content provided by REALTOR.ca has been licensed by REALTOR® members of The Canadian Real Estate Association.
This listing content provided by REALTOR.ca has been licensed by REALTOR® members of The Canadian Real Estate Association.
Additional Photos
