7053 Manning Place Unit# 12, Vernon, British Columbia, V1B 0B6
$719,999MLS® # 10348031
House For Sale In Vernon, British Columbia
3
Bedrooms
3
Baths
-
2
Parking Spaces
Property Information:
FIRST TIME BUYER'S TAKE NOTE.....NO GST for you on any of our units!!! Brand New Townhomes in Manning Place, Foothills Subdivision. Introducing a rare & limited opportunity to own a beautifully crafted, townhome in the highly sought-after Foothills community of Vernon, BC. These exceptional 3-level homes at Manning Place offer an unbeatable combination of design, value, & lifestyle in one of the Okanagan’s most desirable neighbourhoods. Key Features include 3 Bdrms 3 Bthrms – Spacious & thoughtfully laid out for modern living. Open-Concept Floor Plan Bright & airy main living space perfect for entertaining or relaxing. Double Tandem Garage Ample space for vehicles, storage, or home gym. Fenced & Landscaped Backyard – Private outdoor oasis ideal for families & pet owners. 2 Sundecks – 1 at the front to soak in incredible BX Creek Valley & mountain views, & 1 at the back perfect for sunny summer BBQs. Whether you're a first-time buyer, an investor, or looking to downsize without compromise, these homes deliver exceptional quality at an unheard-of price point in the Foothills. Why Manning Place? Nestled in a peaceful, family-friendly subdivision with quick access to Silver Star Mountain, abundant trail systems, natures at your doorstep, schools, & downtown Vernon. Live the Okanagan lifestyle with skiing, hiking, biking, & nature at your doorstep – all while enjoying modern comfort & convenience. GST is applicable for non fist time Buyer's but no PTT (Property Transfer Tax) (id:27)
Building Features:
- Style: Townhouse
- Building Type: Row / Townhouse
- Construction Style - Attachment: Attached
- Exterior Finish: Stucco, Other
- Fireplace Fuel: Electric
- Fireplace Type: Unknown
- Floor Space: 1845 sqft
- Flooring Type: Carpeted, Tile, Vinyl
- Roof Material: Asphalt shingle
- Roof Style: Unknown
- Heating Type: Forced air, Heat Pump
- Cooling Type: Central air conditioning, Heat Pump
- Appliances: Refrigerator, Dishwasher, Range - Electric, Microwave
Property Features:
- OwnershipType: Strata
- Property Type: Single Family
- Bedrooms: 3
- Bathrooms: 3
- Half Bathrooms: 1
- Built in: 2025
- Community Features: Rentals Allowed
- Features: Central island, Balcony
- Fence Type: Chain link
- Floor Space (approx): 1845 Square Feet
- MaintenanceFee Type: Insurance, Property Management, Other, See Remarks, Waste Removal, Water
- View Type: Mountain view, View (panoramic)
- Sewer: Municipal sewage system
- Parking Type: Attached garage
- No. of Parking Spaces: 2
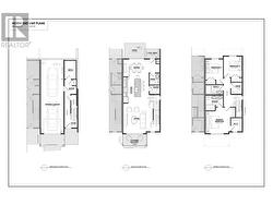
Rooms:
- Laundry 2nd Level 6'0'' x 5'8''
- Bathroom 2nd Level 9'2'' x 5'0''
- Bedroom 2nd Level 10'10'' x 9'7''
- Bedroom 2nd Level 10'9'' x 9'2''
- Other 2nd Level 5'9'' x 7'0''
- Bathroom 2nd Level 9'2'' x 6'0''
- Primary Bedroom 2nd Level 13'7'' x 13'0''
- Foyer Lower Level 6'8'' x 4'6''
- Mudroom Lower Level 6'2'' x 4'1''
- Other Main Level 13'0'' x 6'0''
- Other Main Level 11'0'' x 8'0''
- Other Main Level 6'6'' x 5'0''
- Pantry Main Level 5'3'' x 4'6''
- Bathroom Main Level 6'0'' x 5'3''
- Dining Main Level 9'0'' x 13'5''
- Living Main Level 15'7'' x 15'8''
- Kitchen Main Level 13'5'' x 14'3''
Courtesy of: RE/MAX Vernon
This listing content provided by REALTOR.ca has been licensed by REALTOR® members of The Canadian Real Estate Association.
This listing content provided by REALTOR.ca has been licensed by REALTOR® members of The Canadian Real Estate Association.
Additional Photos












