565 Campbell St, Tofino, BC, V0R 2Z0
$815,500MLS® # 1016086
House For Sale In Tofino, British Columbia
2
Bedrooms
2
Baths
-
1
Parking Spaces
Property Information:
Dawnie brings a stunning collection of 2-bedroom townhomes to Tofino, minutes away from the downtown core. Finally, a space for Tofitians to call home. Practical, durable and quality spaces made with you in mind, and with the hope of bringing back community and connection—the kind where you know your neighbours and can walk to work. Corrugated metal cladding and gable roofs take inspiration from Tofino's working waterfront, giving the homes a sense of familiarity and strength. Large windows and decks open each space to light and fresh air, and generous outdoor storage ensures your surfboards, bikes and outdoor gear always have a space of their own. This unique offering is set to start construction very soon, and the move in date is currently estimated to be early fall 2027. Don't miss out on the newest development to come to Tofino. These wont last!
Property Features:
- Bedrooms: 2
- Bathrooms: 2
- Annual Tax Amount: $0
- Appliances: Dishwasher, F/S/W/D, Microwave
- Basement: None
- Built in: 2027
- Construction Materials: Cement Fibre, Frame Wood, Metal Siding
- Cooling: Partial
- Floor Space (approx): 841 Square Feet
- Flooring: Laminate
- Foundation Details: Concrete Perimeter
- Heating: Baseboard, Heat Pump
- Laundry Features: In Unit
- Lot Frontage: 0 Square Feet
- Ownership: Freehold/Strata
- Parking Features: Attached
- Pets Allowed: Aquariums, Birds, Caged Mammals, Cats OK, Dogs OK, Number Limit
- Property Condition: Under Construction
- Property Sub Type:
- Roof: Metal
- Water Source: Municipal
- Zoning Description: Multi-Family
- Sewer:
- No. of Parking Spaces: 1
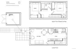
Rooms:
- Storage Other level :Lower 3.23 m x 3.23 m 10'7 ft x 10'7 ft
- Bedroom 2nd Level 2.87 m x 3.02 m 9'5 ft x 9'11 ft
- Bedroom 2nd Level 3.20 m x 2.59 m 10'6 ft x 8'6 ft
- Other Main Level 2.95 m x 2.95 m 9'8 ft x 9'8 ft Note: Patio
- Other Main Level 4.39 m x 4.04 m 14'5 ft x 13'3 ft Note: Dining/Living Combo
- Bathroom Main Level 2.57 m x .81 m 8'5 ft x 2'8 ft
- Bathroom 2nd Level 1.52 m x 2.44 m 5 ft x 8 ft
- Kitchen Main Level 1.57 m x 3.71 m 5'2 ft x 12'2 ft
Courtesy of: Rennie & Associates Realty Ltd.
MLS® property information is provided under copyright© by the Vancouver Island Real Estate Board and Victoria Real Estate Board. The information is from sources deemed reliable, but should not be relied upon without independent verification.
Additional Photos




