1655 Creekside Dr, Nanaimo, BC, V9S 5V8
$499,800MLS® # 1014373
House For Sale In Northfield, Nanaimo, British Columbia
3
Bedrooms
2
Baths
-
4
Parking Spaces
Property Information:
Nicely updated and move in ready best describes this 3 bedroom, 2 bathroom townhouse located in Millstream Creek Complex.This family complex is well run & beautifully landscaped and features lots of parking plus an on-site daycare.Pets allowed, please inquire for specific size requirements.The 1277 sq foot townhouse features 2 fully renovated bathrooms with a new bath fitter tub surround, 1 car garage and a cozy gas fireplace.Main level living with your own private fenced patio/courtyard. Upstairs has 3 bedrooms, 2 yr old stacking washer/dryer & a full bath. Enjoy convenient access to Country Grocer, the hospital, schools and a golf course.This unit is move in ready for your enjoyment. All measurements approximate and should be verified if important.
Property Features:
- Bedrooms: 3
- Bathrooms: 2
- Annual Tax Amount: $3,441
- Accessibility Features: Ground Level Main Floor
- Appliances: Dishwasher, F/S/W/D
- Architectural Style: Patio Home
- Association Amenities: Common Area, Day Care, Meeting Room
- Association Fee Includes: Trash, Maintenance Grounds, Maintenance Structure, Property Management, Sewer, Water
- Basement: None
- Built in: 1996
- Construction Materials: Cement Fibre, Insulation: Ceiling, Insulation: Walls
- Cooling: None
- Exterior Features: Balcony/Patio, Fencing: Full, Low Maintenance Yard
- Fireplace Features: Gas, Living Room
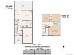
- Floor Space (approx): 1277 Square Feet
- Flooring: Mixed
- Foundation Details: Concrete Perimeter, Slab
- Heating: Baseboard, Electric, Natural Gas
- Laundry Features: In Unit
- Lot Features: Central Location, Easy Access, Family-Oriented Neighbourhood, Landscaped, Near Golf Course, No Through Road, Park Setting, Private, Quiet Area, Recreation Nearby, Shopping Nearby
- Lot Frontage: 0 Square Feet
- Ownership: Freehold/Strata
- Parking Features: Driveway, Garage
- Pets Allowed: Aquariums, Birds, Caged Mammals, Cats OK, Dogs OK
- Property Condition: Resale
- Property Sub Type:
- Road Surface Type: Paved
- Roof: Asphalt Shingle
- Water Source: Municipal
- Window Features: Insulated Windows
- Zoning: R6
- Zoning Description: Multi-Family
- Sewer:
- No. of Parking Spaces: 4
Rooms:
- Living Main Level 3.99 m x 3.89 m 13'1 ft x 12'9 ft
- Dining Main Level 2.84 m x 2.72 m 9'4 ft x 8'11 ft
- Kitchen Main Level 5.56 m x 2.57 m 18'3 ft x 8'5 ft
- Bathroom Main Level
- Other Main Level 2.39 m x 3.10 m 7'10 ft x 10'2 ft Note: Entrance
- Other 2nd Level 4.29 m x 3.51 m 14'1 ft x 11'6 ft
- Bedroom 2nd Level 2.84 m x 2.72 m 9'4 ft x 8'11 ft
- Bedroom 2nd Level 3.84 m x 2.72 m 12'7 ft x 8'11 ft
- Bathroom 2nd Level
Courtesy of: Royal LePage Nanaimo Realty
MLS® property information is provided under copyright© by the Vancouver Island Real Estate Board and Victoria Real Estate Board. The information is from sources deemed reliable, but should not be relied upon without independent verification.
Additional Photos

















