3732 Toba Road Unit# 3, Castlegar, British Columbia, V1N 4Y3
$499,000MLS® # 10366746
House For Sale In Castlegar, British Columbia
2
Bedrooms
2
Baths
-
2
Parking Spaces
Property Information:
Luxury Modern Living Meets Nature! Discover 3 stunning brand-new units to choose from in this beautifully designed modern triplex. Each home offers 2 spacious bedrooms and 2 bathrooms, thoughtfully designed with high-end finishes throughout. The primary suite features a generous walk-in closet, a stylish ensuite, and patio doors leading to a private sundeck, the perfect place to take in mountain views. Enjoy the bright, open concept living space with over height ceilings, recessed lighting, and large windows that fill the home with natural light. Additional highlights include: EV charger, 5 appliances included, electric garage door opener, blinds and window screens, BBQ gas connection, roughed in central vac. Each unit comes with a single car garage plus additional driveway parking. Experience luxury, comfort, and the beauty of nature, all in one exceptional new home! Estimated completion for 2026 (id:27)
Building Features:
- Style: Triplex
- Building Type: Triplex
- Construction Style - Attachment: Attached
- Floor Space: 1273 sqft
- Roof Material: Asphalt shingle
- Roof Style: Unknown
- Heating Type: Forced air
- Cooling Type: Central air conditioning
Property Features:
- OwnershipType: Freehold
- Property Type: Single Family
- Bedrooms: 2
- Bathrooms: 2
- Built in: 2025
- Floor Space (approx): 1273 Square Feet
- Sewer: Municipal sewage system
- Parking Type: Attached garage
- No. of Parking Spaces: 2
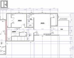
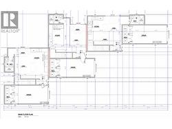
Rooms:
- Primary Bedroom 2nd Level 11'6'' x 14'1''
- Bathroom 2nd Level Measurements not available
- Laundry 2nd Level 5'11'' x 8'8''
- Bedroom 2nd Level 9'7'' x 10'9''
- Kitchen Main Level 8'8'' x 10'
- Living Main Level 10'2'' x 10'4''
- Dining Main Level 5'9'' x 10'11''
- Bathroom Main Level Measurements not available
Courtesy of: Century 21 Assurance Realty Ltd
This listing content provided by REALTOR.ca has been licensed by REALTOR® members of The Canadian Real Estate Association.
This listing content provided by REALTOR.ca has been licensed by REALTOR® members of The Canadian Real Estate Association.
Additional Photos








