77 Mockingbird Crescent, Fort Saskatchewan, AB, T8L 1P3
Courtesy of Jeff J Johnson of Realty Focus, Sandy Johnson of Realty Focus
$724,800MLS® # E4454722
House For Sale In Fort Saskatchewan, Alberta
3
Bedrooms
3
Baths
-
Yes
Garage
Property Information:
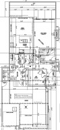
Now starting construction still able to choice finishing. Basically the same house as the show home at 558 Meadowview Drive with main floor den and triple garage. Extra large mud room with walk through butler pantry with R.I. for beverage fridge, sink and wine rack. Full wall kitchen cabinets that extend through the dinette. Great room has 18’ open ceiling with decretive gas fireplace. Side entry for possible future legal basement suite. Upper level has bonus room with coffered ceiling. Separate full laundry room. Total of three bedrooms up. Master has coffered ceiling, Five piece ensuite will free standing tub, double shower and walk in closet. Triple garage is 28’ x 26/23’
Building Features:
- Floor Space: 215.99
Property Features:
- Bedrooms: 3
- Bathrooms: 2+1
- Amenities Features: Ceiling 9 ft., Deck
- Appliances: Dishwasher-Built-In, Dryer, Garage Opener, Hood Fan, Refrigerator, Stove-Electric, Washer
- Architectural Style: 2 Storey
- Basement: Full, Unfinished
- Basement Development: Unfinished
- Basement Type: Full
- Building Type: Detached Single Family
- Built in: 2025
- Community Features: Ceiling 9 ft., Deck
- Exterior Features: Flat Site, No Through Road, See Remarks
- Fireplace Fuel: Gas
- Floor Space (approx): 215.99 Square Metres
- Flooring: Carpet, Ceramic Tile, Vinyl Plank
- Foundation Details: Concrete Perimeter
- Heating: Forced Air-1, Natural Gas
- Lot Shape: Rectangular
- Parking Features: Triple Garage Attached
- Road Access: Paved
- Roof: Asphalt Shingles
- Site Influences: Flat Site, No Through Road, See Remarks
- Zoning: Zone 62
Courtesy of: Realty Focus
Data was last updated 2025-11-07 at 16:32
The data relating to real estate for sale on this web site comes in part from the Internet Data exchange (“IDX”) program of the REALTORS® Association of Edmonton. IDX information is provided exclusively for consumers' personal, non-commercial use and may not be used for any purpose other than to identify prospective properties consumers may be interested in purchasing. The data on this website is deemed reliable but is not guaranteed accurate by the REALTORS® Association of Edmonton. Information deemed reliable but not guaranteed.
Copyright 2025 by the REALTORS® Association of Edmonton. All Rights Reserved. Data is deemed reliable but is not guaranteed accurate by the REALTORS® Association of Edmonton.
Additional Photos



