$2,249,000

House For Sale In Strathearn, Edmonton, Alberta

$2,249,000
  • 3

    Bedrooms

  • 4

    Baths

  • Yes

    Garage

Property Information:

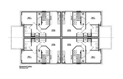
Luxury 4plex in Desirable Strathearn | 8 Fully Self-Contained Units | High-End Finishes Throughout. An exceptional investment opportunity in one of Edmonton’s most sought-after neighborhoods – welcome to this MLI Select Approved luxury 4plex in the heart of Strathearn, steps to the LRT, Designed with both functionality and elegance in mind, this newly built property includes 4 spacious townhomes, each with a separately metered basement suite, for a total of 8 fully self-contained units. From the outside, the curb appeal is unmatched – featuring a stunning brick and Hardie board exterior, landscaped surroundings, and large triple-pane windows that flood the interiors with natural light. Inside, each upper unit boasts vaulted ceilings, premium flooring, and modern high-end finishes throughout. Each basement suite is designed with a private entrance and features separate access to a dedicated mechanical room, ensuring privacy and ease of maintenance.

Building Features:

  • Floor Space: 421.41

Property Features:

  • Bedrooms: 2+1
  • Bathrooms: 3+1
  • Amenities Features: Ceiling 9 ft., Infill Property, 9 ft. Basement Ceiling
  • Appliances: Dishwasher-Built-In, Dryer, Microwave Hood Fan, Refrigerator, Stacked Washer/Dryer, Stove-Countertop Gas
  • Architectural Style: 2 Storey
  • Basement: Full, Finished
  • Basement Development: Fully Finished
  • Basement Type: Full
  • Building Type: Fourplex
  • Built in: 2025
  • Community Features: Ceiling 9 ft., Infill Property, 9 ft. Basement Ceiling
  • Exterior Features: Public Transportation
  • Floor Space (approx): 421.41 Square Metres
  • Flooring: Vinyl Plank
  • Foundation Details: Concrete Perimeter
  • Heating: Forced Air-1, Natural Gas
  • Lot Shape: Rectangular
  • Parking Features: Double Garage Detached
  • Road Access: Paved
  • Roof: Asphalt Shingles
  • Site Influences: Public Transportation
  • Zoning: Zone 18

Courtesy of: Initia Real Estate

Data was last updated 2025-12-01 at 17:20

The data relating to real estate for sale on this web site comes in part from the Internet Data exchange (“IDX”) program of the REALTORS® Association of Edmonton. IDX information is provided exclusively for consumers' personal, non-commercial use and may not be used for any purpose other than to identify prospective properties consumers may be interested in purchasing. The data on this website is deemed reliable but is not guaranteed accurate by the REALTORS® Association of Edmonton. Information deemed reliable but not guaranteed.

Copyright 2025 by the REALTORS® Association of Edmonton. All Rights Reserved. Data is deemed reliable but is not guaranteed accurate by the REALTORS® Association of Edmonton.