10451 149 Street, Edmonton, AB, T5P 1L7
Courtesy of Natasha Malhotra of RE/MAX Excellence
$2,200,000MLS® # E4462948
House For Sale In Grovenor, Edmonton, Alberta
5
Bedrooms
4
Baths
Property Information:
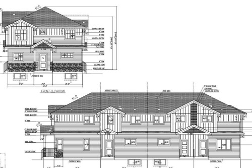
FEB-MARCH COMPLETION!! Brand New FOURPLEX in GROVENOR with 3 Legal Basement Suites – Prime Investment Opportunity! This property features 3 bedrooms and 2.5 bathrooms each at upper unit, welcomed by a modern open concept, the main floor features chefs kitchen with SS appliances, living and dining space; and also include 2 bedroom and 1 bathroom in each LEGAL basement suite with separate entrances, Separate Laundry and full kitchens .. Designed for high rental income or extended family living. Ideally located just minutes to Downtown Edmonton, West Edmonton Mall, and the River Valley, with schools, shopping, and public transit all within walking distance. Each unit spans Approx. 1300 sq ft above grade, plus 640 sq ft in the basement as per plan . it's Under Construction. The fourplex next door is also available.
Building Features:
- Floor Space: 480.4
Property Features:
- Bedrooms: 3+2
- Bathrooms: 3+1
- Amenities Features: Ceiling 9 ft., See Remarks, Infill Property
- Appliances: Dishwasher-Built-In, Dryer, Hood Fan, Refrigerator, Stove-Electric, Washer, Dryer-Two, Refrigerators-Two, Stoves-Two, Washers-Two
- Architectural Style: 2 Storey
- Basement: Full, Finished
- Basement Development: Fully Finished
- Basement Type: Full
- Building Type: Fourplex
- Built in: 2025
- Community Features: Ceiling 9 ft., See Remarks, Infill Property
- Exterior Features: Playground Nearby, Public Transportation, Schools, Shopping Nearby
- Floor Space (approx): 480.4 Square Metres
- Flooring: Carpet, Vinyl Plank
- Foundation Details: Concrete Perimeter
- Heating: Forced Air-1, Natural Gas
- Lot Shape: Rectangular
- Parking Features: Parking Pad Cement/Paved
- Road Access: Paved
- Roof: Asphalt Shingles
- Site Influences: Playground Nearby, Public Transportation, Schools, Shopping Nearby
- Zoning: Zone 21
Courtesy of: RE/MAX Excellence
Data was last updated 2025-10-21 at 17:06
The data relating to real estate for sale on this web site comes in part from the Internet Data exchange (“IDX”) program of the REALTORS® Association of Edmonton. IDX information is provided exclusively for consumers' personal, non-commercial use and may not be used for any purpose other than to identify prospective properties consumers may be interested in purchasing. The data on this website is deemed reliable but is not guaranteed accurate by the REALTORS® Association of Edmonton. Information deemed reliable but not guaranteed.
Copyright 2025 by the REALTORS® Association of Edmonton. All Rights Reserved. Data is deemed reliable but is not guaranteed accurate by the REALTORS® Association of Edmonton.