QuickQuoteTM:
Not Available
QuickQuote There is not enough data on this property to provide a QuickQuote at this time, please connect with an expert.
QuickQuoteTM provides an estimated range of a property’s current market value and is based on local market insights and information available on the property. QuickQuoteTM is not an appraisal or a substitute for an in-person valuation done by an experienced professional. Learn more or connect with an expert
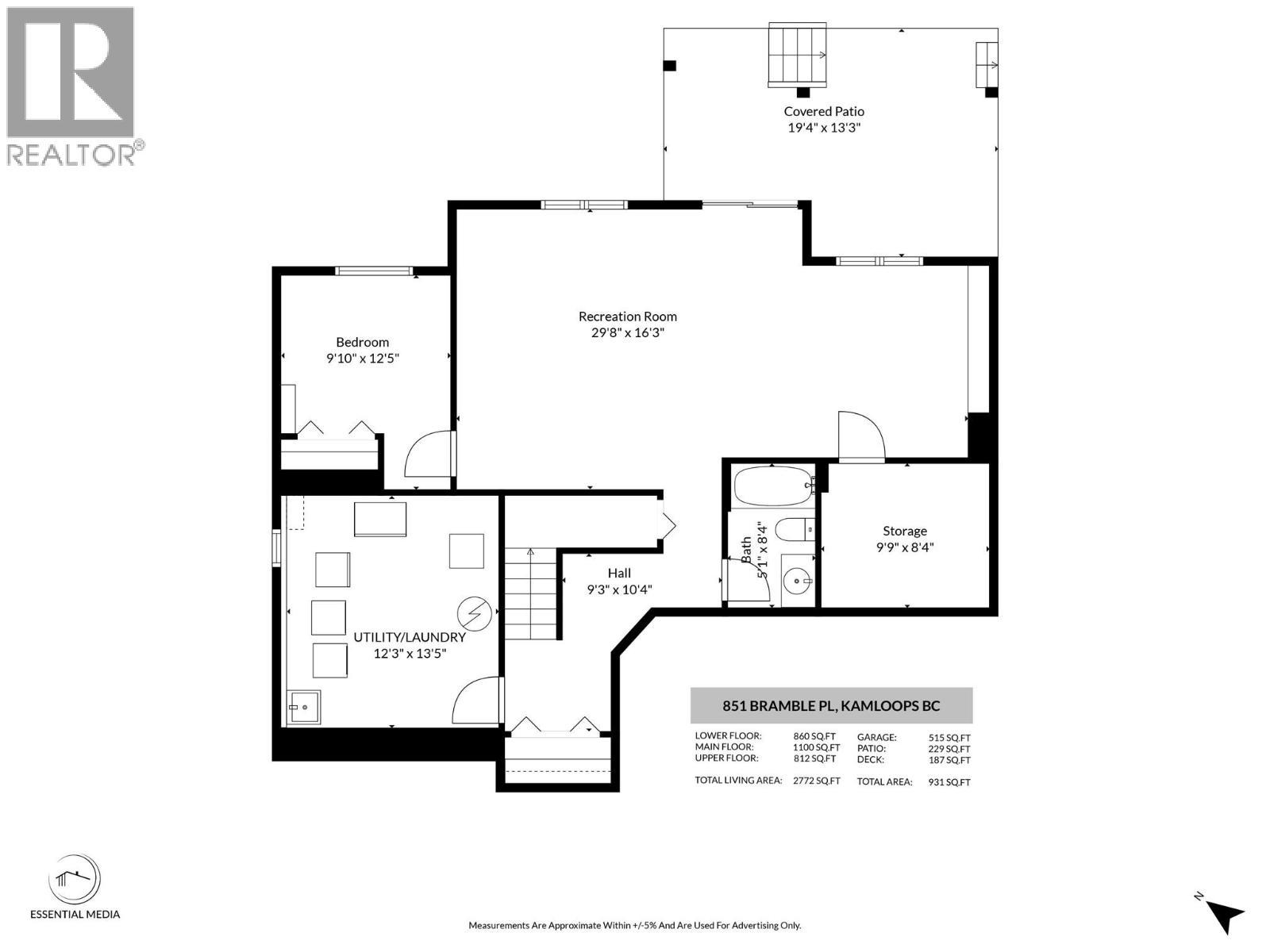
Kamloops BC, V1S 1Y6
MLS® # 10366831


































































